Toggle navigation
(+356) 2164 9500
(+356) 9998 6779
info@sensaramalta.com
Head Office - Sensara Malta
Triq Santa Marija, Safi
09.00 to 19.00 hrs
Monday to Saturday
Home
Properties
Sales
Rentals
Foreign
About us
Services
Contacts
Send your request
Previous
Next
386,000 €
CLICK HERE for DETAILED PHOTOS
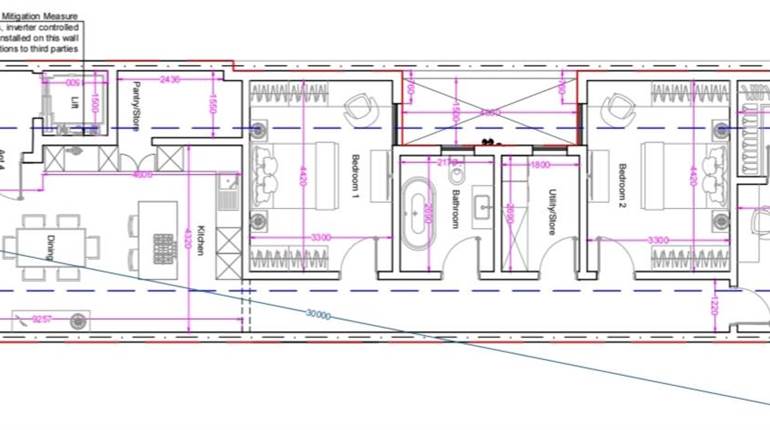
Fgura - 1 Bedroom Corner Penthouse Wtih Pool
Penthouse for sale • Fgura
Fgura corner 2-bedroom penthouse on plan facing ODZ, featuring an open-plan kitchen, dining, and living area, a main bedroom with ensuite and a bathroom. This property boasts a spacious and large corner terrace with pool, ideal for outdoor living and entertaining. This Penthouse will be sold in shell form with all common parts ready and is estimate to be ready by end of 2027. Optional garages are available at an extra price.
Rooms and Features
Code
V021006
Locality
Fgura
Property type
Penthouse
Price
386,000 €
Locals
1
Bedrooms
2
Bathrooms
2
Sqm
204
Terraces
1
Floor
4
Energetic class
Nondescript
Photos • Floorplans • Video
Photos
Options
Print Property sheet
Send property sheet by mail
Schedule a visit
RealEstate Brokers
Aguis Lorna
+356 9961 6121
+356 9998 6779
+356 2164 9500
lorna@sensaramalta.com
Information request
Name *
Phone *
E-mail *
Request Details *
I authorize the processing of my personal data according Regolamento UE n. 679/2016 -
Privacy Policy
I authorize the processing of data for marketing purposes, promotional activities, commercial offers and market surveys.
Send
Share on
We also recommend
for Sale
Iklin -Under Construction 1 Bedroom Fully Finished Penthouse* Roof + Terrace + Optional Garage
371,000 €
for Sale
Qajjenza - 6th Floor 2 Bedroom 154sqm Penthouse + 2 Terraces + Views
868,000 €
for Sale
Mosta - 241sqm 3 bedroom Penthouse in Shell form
573,000 €
Keep default settings X
Use of cookies
This site uses cookies. Our (own) cookies and those of our Partners (third party cookies) are used to offer you a unique experience with us. For this reason, together with our partners, we collect and process non-sensitive information (such as the identifier of your device or the pages you visit).
At any time you can delete, modify or verify the information you share in
Cookie preference
or in our
Cookie Policy
and
Privacy Policy
.
Necessary
Functional
Profiling
Analytics
Accept all
Decline all
Accept selected
Cookie preference