Toggle navigation
(+356) 2164 9500
(+356) 9998 6779
info@sensaramalta.com
Head Office - Sensara Malta
Triq Santa Marija, Safi
09.00 to 19.00 hrs
Monday to Saturday
Home
Properties
Sales
Rentals
Foreign
About us
Services
Contacts
Send your request
Previous
Next
330,000 €
CLICK HERE for DETAILED PHOTOS
Birkirkara - 1 Bdr Finished Penthouse Fully finished + Airspace
Penthouse for sale • Birkirkara
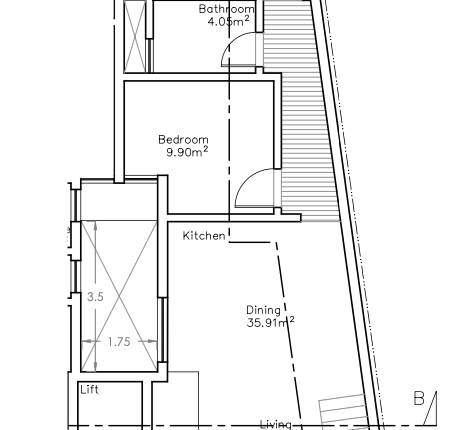
Presently under construction, laid on the 4th floor, being offered finished including bathroom, internal doors, Ac's Units and photovoltaic system.
This one-bedroom penthouse enjoys circa 72 sqm and comprises an open plan kitchen/living/dining overlooking its front terrace and a corridor that leads to its guest bathroom, master bedroom, and back terrace.
Optional garages are available at basement level.
Rooms and Features
Code
V021375
Locality
Birkirkara
Property type
Penthouse
Price
330,000 €
Locals
1
Bedrooms
1
Bathrooms
1
Sqm
72.6
Terraces
2
Floor
4
Energetic class
Not applicable
Property Conditions
New
Furniture
Not Furnished
Kitchen
Open Kitchen
Doors
New
Accessories:
Air Conditioning, Double Glazing, Photovoltaic
Photos • Floorplans • Video
Photos
Options
Print Property sheet
Send property sheet by mail
Schedule a visit
RealEstate Brokers
Grima Keith
+356 7902 0587
+356 9998 6775
+356 9998 6779
keith@sensaramalta.com
Information request
Name *
Phone *
E-mail *
Request Details *
I authorize the processing of my personal data according Regolamento UE n. 679/2016 -
Privacy Policy
I authorize the processing of data for marketing purposes, promotional activities, commercial offers and market surveys.
Send
Share on
We also recommend
for Sale
Pieta Under Construction Top floor 1 Bedroom Penthouse Fully finished
310,000 €
for Sale
Zejtun - 1 Bedroom Penthouse Shell Form
270,000 €
for Sale
Siggiewi - 2 Bedroom Finished Penthouse + Full Roof + Views - Already Built
461,000 €
Keep default settings X
Use of cookies
This site uses cookies. Our (own) cookies and those of our Partners (third party cookies) are used to offer you a unique experience with us. For this reason, together with our partners, we collect and process non-sensitive information (such as the identifier of your device or the pages you visit).
At any time you can delete, modify or verify the information you share in
Cookie preference
or in our
Cookie Policy
and
Privacy Policy
.
Necessary
Functional
Profiling
Analytics
Accept all
Decline all
Accept selected
Cookie preference