Toggle navigation
(+356) 2164 9500
(+356) 9998 6779
info@sensaramalta.com
Head Office - Sensara Malta
Triq Santa Marija, Safi
09.00 to 19.00 hrs
Monday to Saturday
Home
Properties
Sales
Rentals
Foreign
About us
Services
Contacts
Send your request
Previous
Next
246,000 €
CLICK HERE for DETAILED PHOTOS
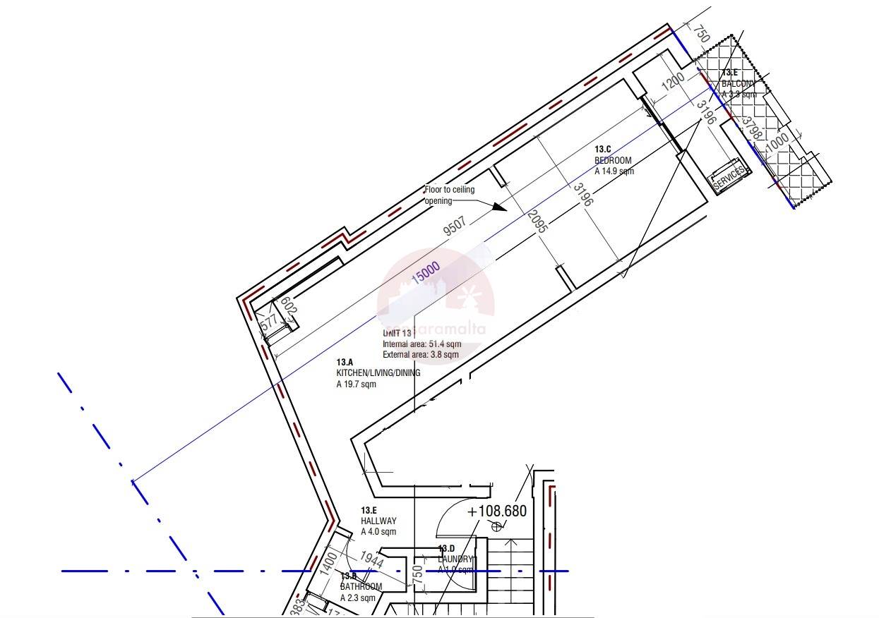
Msida - 3rd Floor Studio Finished Apartment On Plan
Studio flat for sale • Msida
Located in Msida, Third-floor, fully finished apartment, currently available on plan.
The layout comprises of an open plan kitchen/dining/living with space for bedroom at the back connected to a balcony, a bathroom and a laundry room.
This apartment is being offered fully finished including bathrooms and internal doors and is estimate to be completed by 2027. An optional garage is available at an extra price of 75k.
Rooms and Features
Code
V024499
Locality
Msida
Property type
Studio flat
Price
246,000 €
Locals
1
Bedrooms
1
Bathrooms
1
Sqm
55
Balconies
1
Floor
3
Energetic class
Nondescript
Property Conditions
Next Realization
Photos • Floorplans • Video
Photos
Options
Print Property sheet
Send property sheet by mail
Schedule a visit
RealEstate Brokers
Hughes Jeffrey
+356 9980 0004
+356 9998 6779
+356 9998 6775
hughes@sensaramalta.com
Information request
Name *
Phone *
E-mail *
Request Details *
I authorize the processing of my personal data according Regolamento UE n. 679/2016 -
Privacy Policy
I authorize the processing of data for marketing purposes, promotional activities, commercial offers and market surveys.
Send
Share on
We also recommend
for Sale
Msida - 2nd Floor Finished Studio Apartment On Plan
241,000 €
for Sale
Msida - 1st Floor Finished Studio Apartment On Plan
236,000 €
for Sale
Msida - 3rd Floor Finished Studio Apartment On Plan
246,000 €
Keep default settings X
Use of cookies
This site uses cookies. Our (own) cookies and those of our Partners (third party cookies) are used to offer you a unique experience with us. For this reason, together with our partners, we collect and process non-sensitive information (such as the identifier of your device or the pages you visit).
At any time you can delete, modify or verify the information you share in
Cookie preference
or in our
Cookie Policy
and
Privacy Policy
.
Necessary
Functional
Profiling
Analytics
Accept all
Decline all
Accept selected
Cookie preference