Toggle navigation
(+356) 2164 9500
(+356) 9998 6779
info@sensaramalta.com
Head Office - Sensara Malta
Triq Santa Marija, Safi
09.00 to 19.00 hrs
Monday to Saturday
Home
Properties
Sales
Rentals
Foreign
About us
Services
Contacts
Send your request
Previous
Next
315,000 €
CLICK HERE for DETAILED PHOTOS
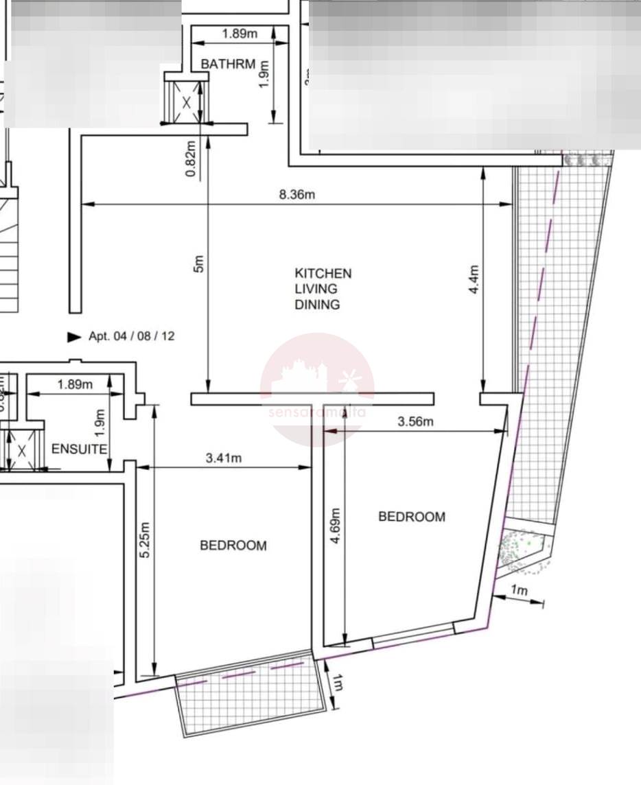
Zabbar - 2 Bedroom Apartment - Fully Finished - Under Construction
2 bedroom apartment for sale • Zabbar
Presently Under Construction, this 2 Bedroom Corner Apartment, set on the second floor, served with a lift. Located in Zabbar and to be sold Fully Finished including Bathrooms and Internal Doors.
Enjoying a corner layout, this property benefits from abundant natural light throughout and all bedrooms lead to outdoor spaces rather than internal shafts.
The apartment comprises an open-plan kitchen/living/dining area, a main bathroom, two bedrooms (main with en-suite), a larger than usual balcony, and an additional balcony.
Optional Garage is available.
Freehold
Rooms and Features
Code
V024374
Locality
Zabbar
Property type
2 bedroom apartment
Price
315,000 €
Locals
1
Bedrooms
2
Bathrooms
2
Sqm
99
Balconies
2
Energetic class
Nondescript
Photos • Floorplans • Video
Photos
Options
Print Property sheet
Send property sheet by mail
Schedule a visit
RealEstate Brokers
Jenkins Rita
+356 7712 7772
+356 9998 6779
+356 9998 6775
rita@sensaramalta.com
Information request
Name *
Phone *
E-mail *
Request Details *
I authorize the processing of my personal data according Regolamento UE n. 679/2016 -
Privacy Policy
I authorize the processing of data for marketing purposes, promotional activities, commercial offers and market surveys.
Send
Share on
We also recommend
for Sale
Xaghra Gozo - 2 Bedroom Furnished Apartment
298,000 €
for Sale
Swieqi - 2nd Floor Fully Finished 2 Bedroom Apartment + Optional Garage
410,000 €
for Sale
Iklin - Already Built 2 Bedroom Fully Finished Apartment at Elevated Ground Floor + Optional Garage
308,000 €
Keep default settings X
Use of cookies
This site uses cookies. Our (own) cookies and those of our Partners (third party cookies) are used to offer you a unique experience with us. For this reason, together with our partners, we collect and process non-sensitive information (such as the identifier of your device or the pages you visit).
At any time you can delete, modify or verify the information you share in
Cookie preference
or in our
Cookie Policy
and
Privacy Policy
.
Necessary
Functional
Profiling
Analytics
Accept all
Decline all
Accept selected
Cookie preference