Toggle navigation
(+356) 2164 9500
(+356) 9998 6779
info@sensaramalta.com
Head Office - Sensara Malta
Triq Santa Marija, Safi
09.00 to 19.00 hrs
Monday to Saturday
Home
Properties
Sales
Rentals
Foreign
About us
Services
Contacts
Send your request
Previous
Next
358,500 €
CLICK HERE for DETAILED PHOTOS
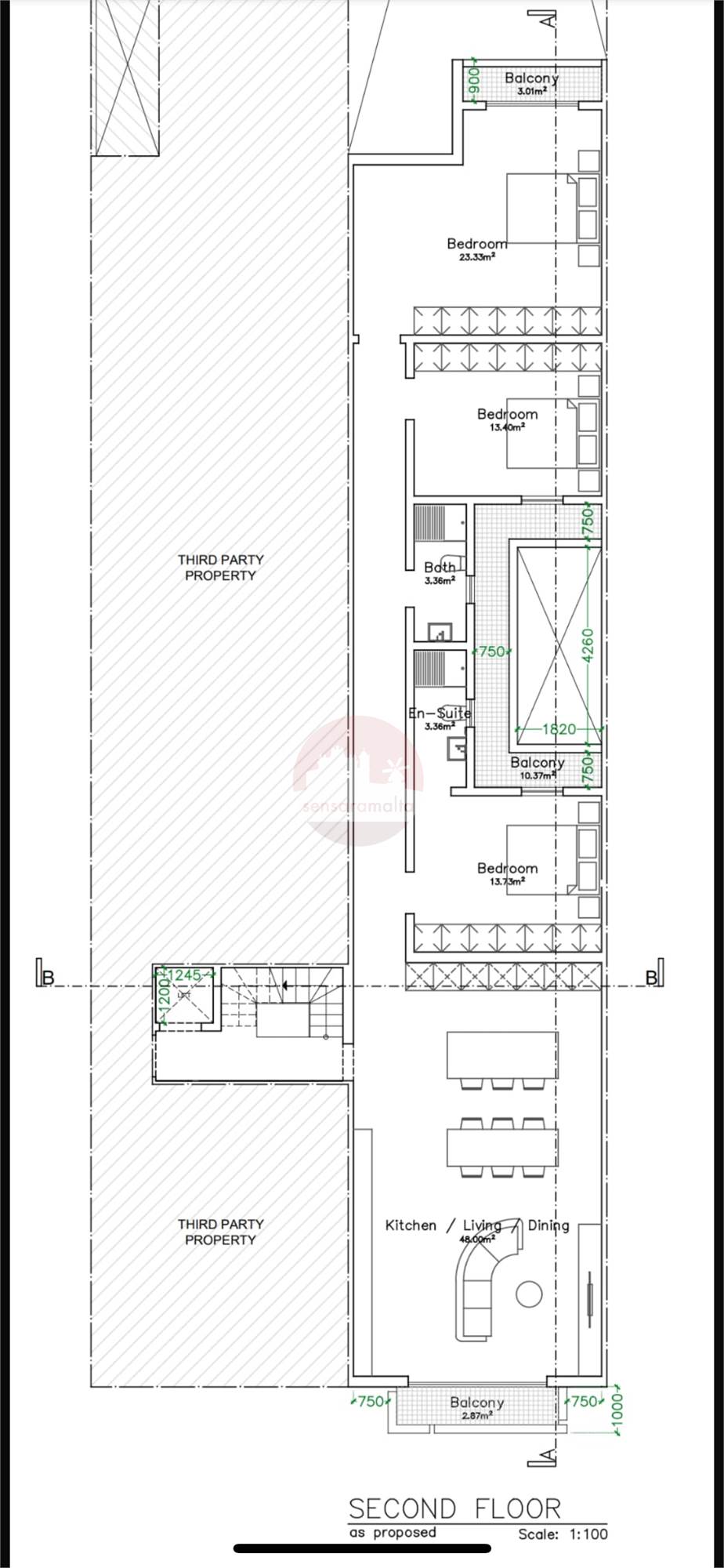
Birkirkara - 2nd Floor 3 Bedroom 145sqm Apartment
3+ bedroom apartment for sale • Birkirkara
Centrally located in Birkirkara comes a well sized, three-bedroom apartment set on the second floor and served with a lift.
The property comprises of a kitchen/living/dining/balcony, main bathroom, internal balcony, three double bedrooms (master ensuite) and a back balcony.
Estimated completion date end of this year.
Freehold
Rooms and Features
Code
V024313
Locality
Birkirkara
Property type
3+ bedroom apartment
Price
358,500 €
Locals
1
Bedrooms
3
Bathrooms
2
Sqm
145
Balconies
3
Energetic class
Not applicable
Photos • Floorplans • Video
Photos
Options
Print Property sheet
Send property sheet by mail
Schedule a visit
RealEstate Brokers
Caruana Dylan
+356 9960 6829
+356 9998 6779
+356 2164 9500
dylan@sensaramalta.com
Information request
Name *
Phone *
E-mail *
Request Details *
I authorize the processing of my personal data according Regolamento UE n. 679/2016 -
Privacy Policy
I authorize the processing of data for marketing purposes, promotional activities, commercial offers and market surveys.
Send
Share on
We also recommend
for Sale
Marsalforn Gozo - 3 Bedroom Terraced House
360,000 €
for Sale
Munxar Gozo - 3 Bedroom Partly Finished Apartment
338,000 €
for Sale
Luqa - 1st Floor 3 Bedroom Finished Apartment
358,500 €
Keep default settings X
Use of cookies
This site uses cookies. Our (own) cookies and those of our Partners (third party cookies) are used to offer you a unique experience with us. For this reason, together with our partners, we collect and process non-sensitive information (such as the identifier of your device or the pages you visit).
At any time you can delete, modify or verify the information you share in
Cookie preference
or in our
Cookie Policy
and
Privacy Policy
.
Necessary
Functional
Profiling
Analytics
Accept all
Decline all
Accept selected
Cookie preference