Toggle navigation
(+356) 2164 9500
(+356) 9998 6779
info@sensaramalta.com
Head Office - Sensara Malta
Triq Santa Marija, Safi
09.00 to 19.00 hrs
Monday to Saturday
Home
Properties
Sales
Rentals
Foreign
About us
Services
Contacts
Send your request
Previous
Next
471,000 €
CLICK HERE for DETAILED PHOTOS
Marsaxlokk - 3 Bedroom Elevated Finished Maisonette + Backyard (On Plan)
Maisonette for sale • Marsaxlokk
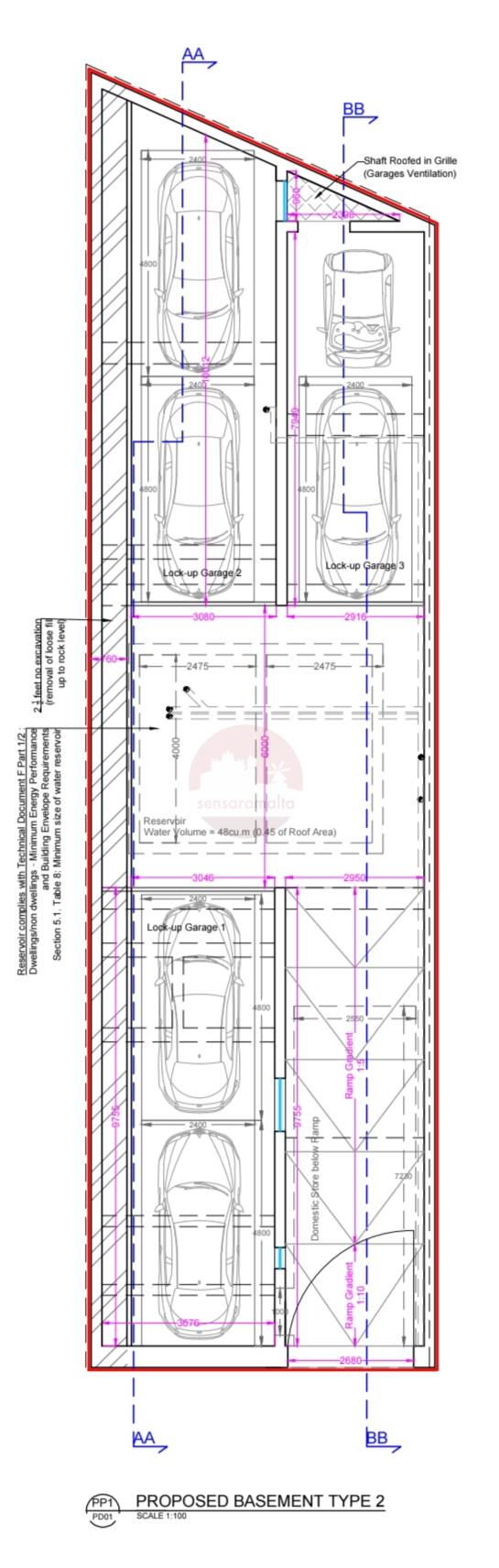
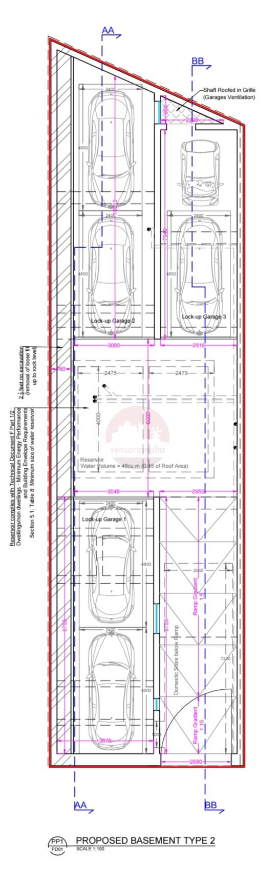
Located in Marsaxlokk comes this elevated maisonette, few minutes away from the seafront. Optional basement garages starting from €67,000.
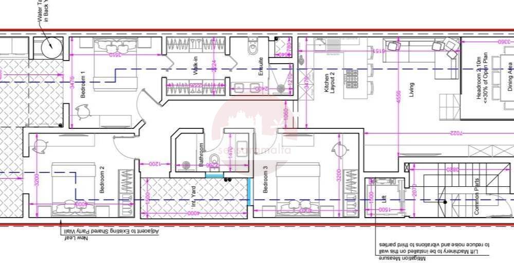
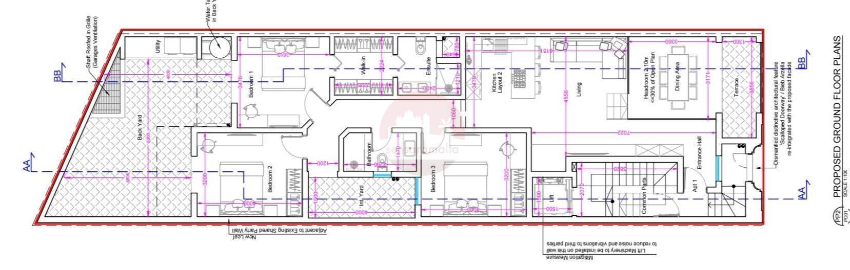
Consists of an open plan kitchen/dining/living, front terrace, internal yard, main bathroom and three-double bedrooms, master bedroom with ensuite, walk-in-wardrobe, utility room and backyard.
This maisonette is being offered finished excluding bathrooms and doors. Offered on plan and is estimated to be completed by 2027.
Freehold
Rooms and Features
Code
V024310
Locality
Marsaxlokk
Property type
Maisonette
Price
471,000 €
Locals
1
Bedrooms
3
Bathrooms
2
Sqm
169
Terraces
2
Energetic class
Nondescript
Property Conditions
New
Accessories:
Elevator, Double Glazing, Laundry
Photos • Floorplans • Video
Photos
Options
Print Property sheet
Send property sheet by mail
Schedule a visit
RealEstate Brokers
Grima Keith
+356 7902 0587
+356 9998 6775
+356 9998 6779
keith@sensaramalta.com
Information request
Name *
Phone *
E-mail *
Request Details *
I authorize the processing of my personal data according Regolamento UE n. 679/2016 -
Privacy Policy
I authorize the processing of data for marketing purposes, promotional activities, commercial offers and market surveys.
Send
Share on
We also recommend
for Sale
Xewkija Gozo - 3 Bedroom Maisonette + Garage
330,000 €
for Sale
Marsascala - Elevated 3 Bedroom Ground Floor Maisonette + 4 Car Garage
545,000 €
for Sale
Birzebbugia - Ready To Move Into 2 Dbl Bedroom Elevated Maisonette / Spacious Backyard
368,000 €
Keep default settings X
Use of cookies
This site uses cookies. Our (own) cookies and those of our Partners (third party cookies) are used to offer you a unique experience with us. For this reason, together with our partners, we collect and process non-sensitive information (such as the identifier of your device or the pages you visit).
At any time you can delete, modify or verify the information you share in
Cookie preference
or in our
Cookie Policy
and
Privacy Policy
.
Necessary
Functional
Profiling
Analytics
Accept all
Decline all
Accept selected
Cookie preference