Toggle navigation
(+356) 2164 9500
(+356) 9998 6779
info@sensaramalta.com
Head Office - Sensara Malta
Triq Santa Marija, Safi
09.00 to 19.00 hrs
Monday to Saturday
Home
Properties
Sales
Rentals
Foreign
About us
Services
Contacts
Send your request
Previous
Next
696,000 €
CLICK HERE for DETAILED PHOTOS
Attard - 3 Bedroom Fully Finished Elevated Maisonette Ready Built
Maisonette for sale • Attard
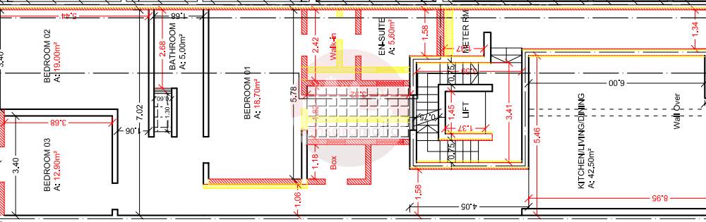
Located in Attard, three-bedroom larger than usual and ready built elevated maisonette.
The layout comprises of an open plan kitchen/dining/living, a box room, main bathroom, internal yard, two double bedrooms that are connected to a backyard and a master bedroom that includes an ensuite bathroom and a walk-in-wardrobe.
This maisonette is being offered highly finished including bathrooms, doors and ac units.
Rooms and Features
Code
V024111
Locality
Attard
Property type
Maisonette
Price
696,000 €
Locals
1
Bedrooms
3
Bathrooms
2
Sqm
177
Terraces
1
Floor
Ground floor
Energetic class
Nondescript
Photos • Floorplans • Video
Photos
Options
Print Property sheet
Send property sheet by mail
Schedule a visit
RealEstate Brokers
Zahra Gaynor
+356 7933 5643
+356 9998 6775
+356 9998 6779
gaynor@sensaramalta.com
Information request
Name *
Phone *
E-mail *
Request Details *
I authorize the processing of my personal data according Regolamento UE n. 679/2016 -
Privacy Policy
I authorize the processing of data for marketing purposes, promotional activities, commercial offers and market surveys.
Send
Share on
We also recommend
for Sale
Zurrieq - 3 Bedroom Finished Maisonette On Plan
440,500 €
for Sale
Swieqi - 3 Bedroom Maisonette With Garage And Move In Ready
665,500 €
for Sale
Mosta - Already Built 2 Bedroom Finished Maisonette + Front Terrace
379,000 €
Keep default settings X
Use of cookies
This site uses cookies. Our (own) cookies and those of our Partners (third party cookies) are used to offer you a unique experience with us. For this reason, together with our partners, we collect and process non-sensitive information (such as the identifier of your device or the pages you visit).
At any time you can delete, modify or verify the information you share in
Cookie preference
or in our
Cookie Policy
and
Privacy Policy
.
Necessary
Functional
Profiling
Analytics
Accept all
Decline all
Accept selected
Cookie preference