Toggle navigation
(+356) 2164 9500
(+356) 9998 6779
info@sensaramalta.com
Head Office - Sensara Malta
Triq Santa Marija, Safi
09.00 to 19.00 hrs
Monday to Saturday
Home
Properties
Sales
Rentals
Foreign
About us
Services
Contacts
Send your request
Previous
Next
512,000 €
CLICK HERE for DETAILED PHOTOS
St Paul's Bay - Four Bedroom Finished Duplex Penthouse + Views, On Plan
Penthouse for sale • San Pawl il-Bahar
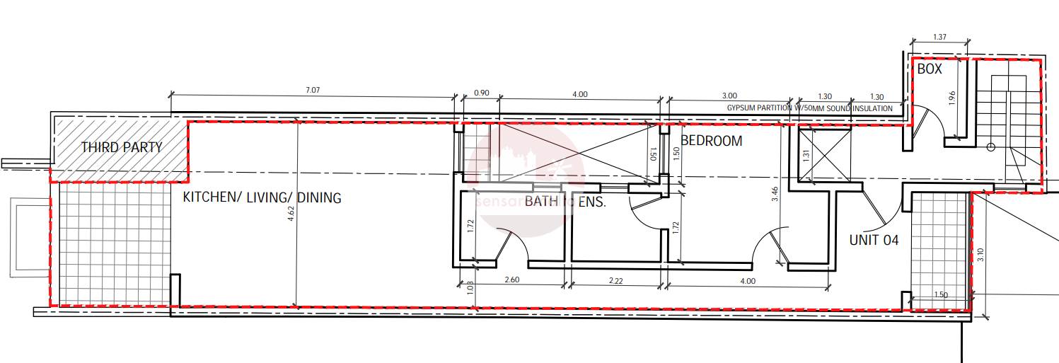
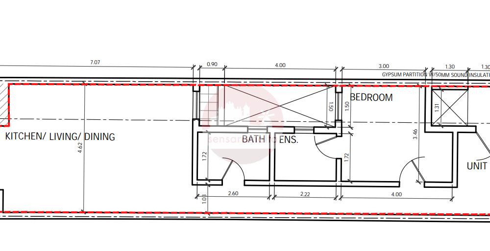
Located in St Paul's bay on the fifth and sixth floor, four-bedroom finished Penthouse with sea views, currently available on plan.
This Penthouse comprises of an open plan kitchen/dining/living with a front terrace, main bathroom, a double bedroom with ensuite, a box room and a balcony on the first level, a Hallway, a wash room, a box room, main bathroom and three double bedrooms (one of them with ensuite) on the second level.
The project is currently under construction and is estimate to be completed by mid 2026. It is being offered finished excluding bathrooms and internal doors.
Rooms and Features
Code
V024095
Locality
San Pawl il-Bahar
Property type
Penthouse
Price
512,000 €
Locals
1
Bedrooms
3
Bathrooms
4
Sqm
186
Balconies
3
Terraces
1
Floor
56
Energetic class
Nondescript
Photos • Floorplans • Video
Photos
Options
Print Property sheet
Send property sheet by mail
Schedule a visit
RealEstate Brokers
Zahra Gaynor
+356 7933 5643
+356 9998 6775
+356 9998 6779
gaynor@sensaramalta.com
Information request
Name *
Phone *
E-mail *
Request Details *
I authorize the processing of my personal data according Regolamento UE n. 679/2016 -
Privacy Policy
I authorize the processing of data for marketing purposes, promotional activities, commercial offers and market surveys.
Send
Share on
We also recommend
for Sale
Mosta - 2 Bedroom Finished Penthouse
627,000 €
for Sale
Burmarrad - Highly Fully Finished Penthouse + Pool
696,500 €
for Sale
Iklin -Under Construction 1 Bedroom Fully Finished Penthouse* Roof + Terrace + Optional Garage
371,000 €
Keep default settings X
Use of cookies
This site uses cookies. Our (own) cookies and those of our Partners (third party cookies) are used to offer you a unique experience with us. For this reason, together with our partners, we collect and process non-sensitive information (such as the identifier of your device or the pages you visit).
At any time you can delete, modify or verify the information you share in
Cookie preference
or in our
Cookie Policy
and
Privacy Policy
.
Necessary
Functional
Profiling
Analytics
Accept all
Decline all
Accept selected
Cookie preference