Toggle navigation
(+356) 2164 9500
(+356) 9998 6779
info@sensaramalta.com
Head Office - Sensara Malta
Triq Santa Marija, Safi
09.00 to 19.00 hrs
Monday to Saturday
Home
Properties
Sales
Rentals
Foreign
About us
Services
Contacts
Send your request
Previous
Next
290,000 €
CLICK HERE for DETAILED PHOTOS
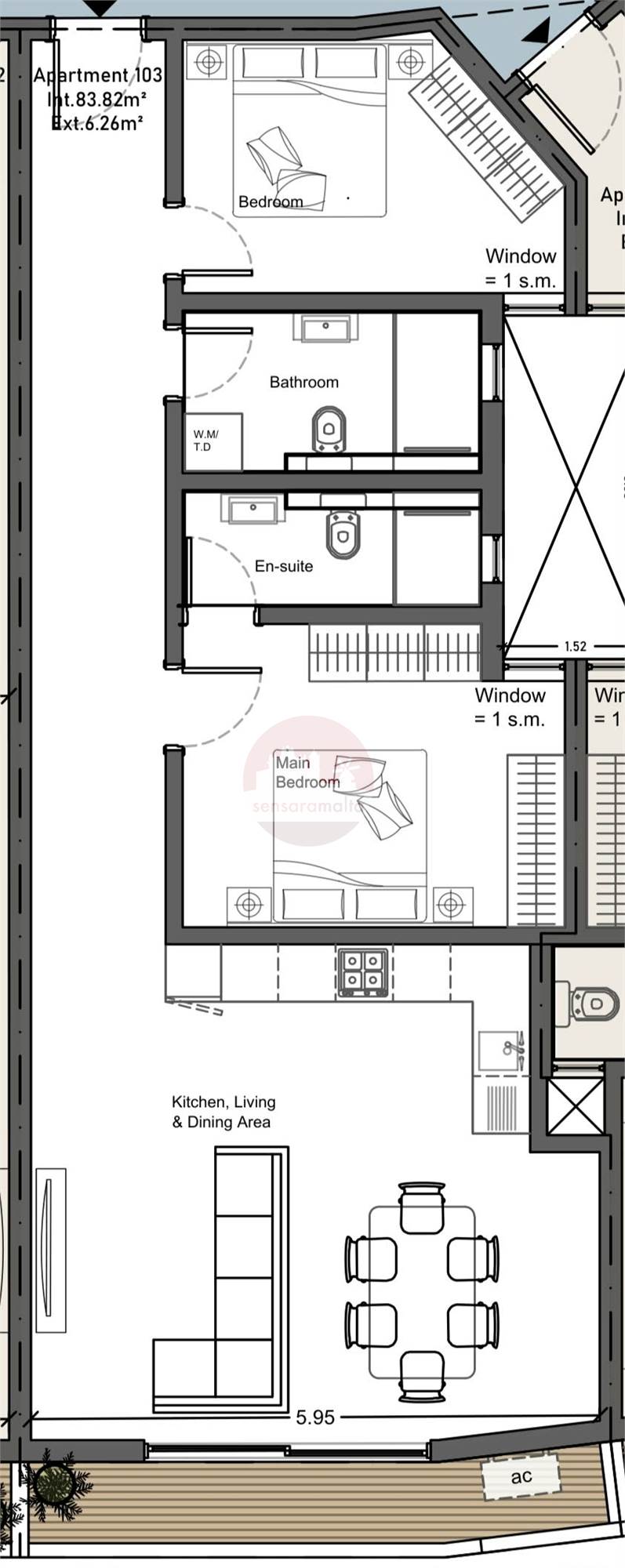
Dingli - 1st Floor 2 Bedroom Apartment Shell Form
2 bedroom apartment for sale • Dingli
New project which is being sold on plan.
This Apartment is situated on the 1st floor and consist of 2 double bedrooms, an en-suite, main bathroom and an open-plan kitchen/living/dining at the back of the property followed by a good sized front terrace.
Being sold in Shell form by mid 2027.
Price reduction to Sensara Malta client.
Rooms and Features
Code
V024003
Locality
Dingli
Property type
2 bedroom apartment
Price
290,000 €
Locals
1
Sqm
90
Floor
1
Energetic class
Nondescript
Photos • Floorplans • Video
Photos
Options
Print Property sheet
Send property sheet by mail
Schedule a visit
RealEstate Brokers
Briffa Stephania
+356 7747 9456
+356 9998 6779
+356 9998 6775
stephania@sensaramalta.com
Information request
Name *
Phone *
E-mail *
Request Details *
I authorize the processing of my personal data according Regolamento UE n. 679/2016 -
Privacy Policy
I authorize the processing of data for marketing purposes, promotional activities, commercial offers and market surveys.
Send
Share on
We also recommend
for Sale
Mosta, Already Built ** Finished 2 Bedroom Apartment with optional Garages
333,000 €
for Sale
St Pauls Bay - 2 Bedroom Apartment Highly Finished
358,500 €
for Sale
Gharb Gozo - 1 Bedroom + Study Penthouse + Airspace
227,000 €
Keep default settings X
Use of cookies
This site uses cookies. Our (own) cookies and those of our Partners (third party cookies) are used to offer you a unique experience with us. For this reason, together with our partners, we collect and process non-sensitive information (such as the identifier of your device or the pages you visit).
At any time you can delete, modify or verify the information you share in
Cookie preference
or in our
Cookie Policy
and
Privacy Policy
.
Necessary
Functional
Profiling
Analytics
Accept all
Decline all
Accept selected
Cookie preference