Toggle navigation
(+356) 2164 9500
(+356) 9998 6779
info@sensaramalta.com
Head Office - Sensara Malta
Triq Santa Marija, Safi
09.00 to 19.00 hrs
Monday to Saturday
Home
Properties
Sales
Rentals
Foreign
About us
Services
Contacts
Send your request
Previous
Next
400,000 €
CLICK HERE for DETAILED PHOTOS
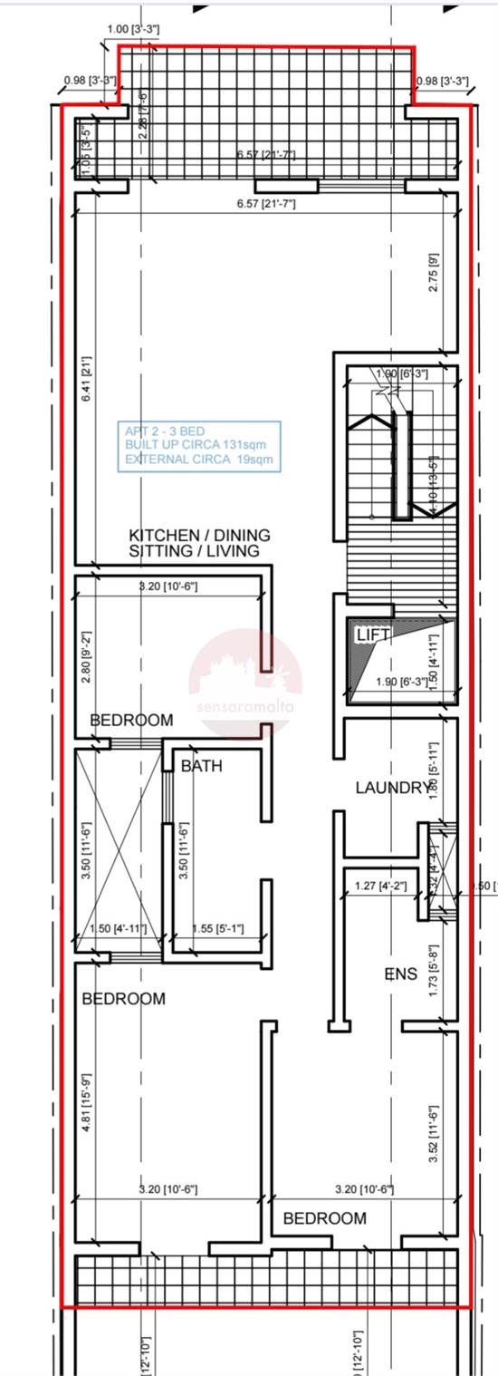
Fgura - 3 Bedroom Apartment Fully Finished (On Plan)
3+ bedroom apartment for sale • Fgura
Presently on plan and set for completion in shell form by end of 2026 and fully finished, including bathrooms and internal doors by June 2027
This spacious first-floor apartment in Fgura presents a rare opportunity in today’s market, located within a small, exclusive block featuring just one unit per floor.
Accommodation includes a squarish open plan kitchen/dining/living with a spacious front terrace, three double bedrooms master with ensuite, mainj bathroom, laundry room and back balcony.
This property stands out for its superior layout and finish—truly a standout option compared to standard new developments in the area.
Rooms and Features
Code
V023786
Locality
Fgura
Property type
3+ bedroom apartment
Price
400,000 €
Locals
1
Bedrooms
3
Bathrooms
2
Sqm
150
Balconies
1
Terraces
1
Energetic class
Nondescript
Accessories:
Air Conditioning, Elevator, Double Glazing, Laundry
Photos • Floorplans • Video
Photos
Options
Print Property sheet
Send property sheet by mail
Schedule a visit
RealEstate Brokers
Grima Keith
+356 7902 0587
+356 9998 6775
+356 9998 6779
keith@sensaramalta.com
Information request
Name *
Phone *
E-mail *
Request Details *
I authorize the processing of my personal data according Regolamento UE n. 679/2016 -
Privacy Policy
I authorize the processing of data for marketing purposes, promotional activities, commercial offers and market surveys.
Send
Share on
We also recommend
for Sale
Zebbiegh - 3 Bedroom Finished 1st Floor Apartment Ready Built
378,000 €
for Sale
Marsalforn Gozo - 3 Bedroom Furnished Apartment
260,000 €
for Sale
Xaghra Gozo - 3 Bedroom Apartment
256,000 €
Keep default settings X
Use of cookies
This site uses cookies. Our (own) cookies and those of our Partners (third party cookies) are used to offer you a unique experience with us. For this reason, together with our partners, we collect and process non-sensitive information (such as the identifier of your device or the pages you visit).
At any time you can delete, modify or verify the information you share in
Cookie preference
or in our
Cookie Policy
and
Privacy Policy
.
Necessary
Functional
Profiling
Analytics
Accept all
Decline all
Accept selected
Cookie preference