Toggle navigation
(+356) 2164 9500
(+356) 9998 6779
info@sensaramalta.com
Head Office - Sensara Malta
Triq Santa Marija, Safi
09.00 to 19.00 hrs
Monday to Saturday
Home
Properties
Sales
Rentals
Foreign
About us
Services
Contacts
Send your request
Previous
Next
820,000 €
CLICK HERE for DETAILED PHOTOS
Rabat - 2 Bedroom Finished Luxurious Apartment + Pool + Terrace + Views
2 bedroom apartment for sale • Rabat
A ready-built, highly finished two-bedroom apartment featuring elegant bathrooms and a modern VRV air-conditioning system.
The property offers open views, access to a communal swimming pool, and combines comfort with convenience.
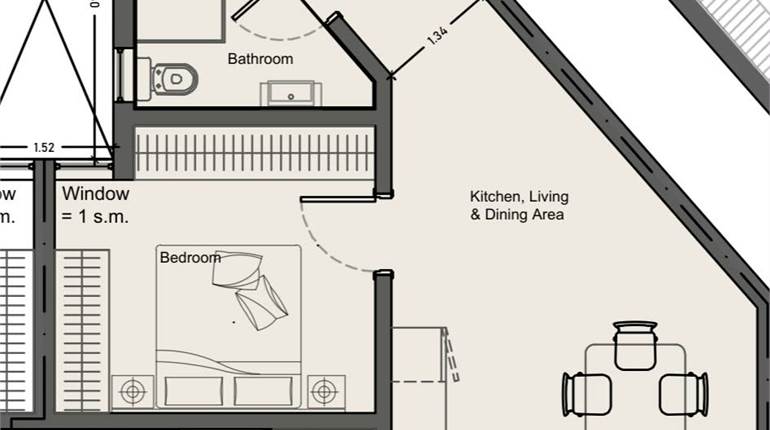
Consists of two bedrooms, both with balconies, with the master bedroom featuring an ensuite bathroom. It also includes a laundry room and a main bathroom. The open-plan kitchen/dining/living area opens onto a spacious front terrace.
Perfect for those looking to retire in comfort, this apartment offers the ideal balance of downsizing to a manageable space while still enjoying a luxurious lifestyle.
Car spaces and garages are available at an additional price.
Rooms and Features
Code
V023117
Locality
Rabat
Property type
2 bedroom apartment
Price
820,000 €
Locals
1
Bedrooms
2
Bathrooms
2
Sqm
159
Terraces
2
Floor
4
Energetic class
Nondescript
Photos • Floorplans • Video
Photos
Options
Print Property sheet
Send property sheet by mail
Schedule a visit
RealEstate Brokers
Caruana Dylan
+356 9960 6829
+356 9998 6779
+356 2164 9500
dylan@sensaramalta.com
Information request
Name *
Phone *
E-mail *
Request Details *
I authorize the processing of my personal data according Regolamento UE n. 679/2016 -
Privacy Policy
I authorize the processing of data for marketing purposes, promotional activities, commercial offers and market surveys.
Send
Share on
We also recommend
for Sale
Zabbar - Under Construction, 2 bedrooms 2nd Floor fully Finished Apartment
325,000 €
for Sale
Balzan - Third Floor Finished 2 Bedroom Apartment On Plan
330,000 €
for Sale
St Pauls Bay - 2 Bedroom Apartment Highly Finished
358,500 €
Keep default settings X
Use of cookies
This site uses cookies. Our (own) cookies and those of our Partners (third party cookies) are used to offer you a unique experience with us. For this reason, together with our partners, we collect and process non-sensitive information (such as the identifier of your device or the pages you visit).
At any time you can delete, modify or verify the information you share in
Cookie preference
or in our
Cookie Policy
and
Privacy Policy
.
Necessary
Functional
Profiling
Analytics
Accept all
Decline all
Accept selected
Cookie preference