Toggle navigation
(+356) 2164 9500
(+356) 9998 6779
info@sensaramalta.com
Head Office - Sensara Malta
Triq Santa Marija, Safi
09.00 to 19.00 hrs
Monday to Saturday
Home
Properties
Sales
Rentals
Foreign
About us
Services
Contacts
Send your request
Previous
Next
405,000 €
CLICK HERE for DETAILED PHOTOS
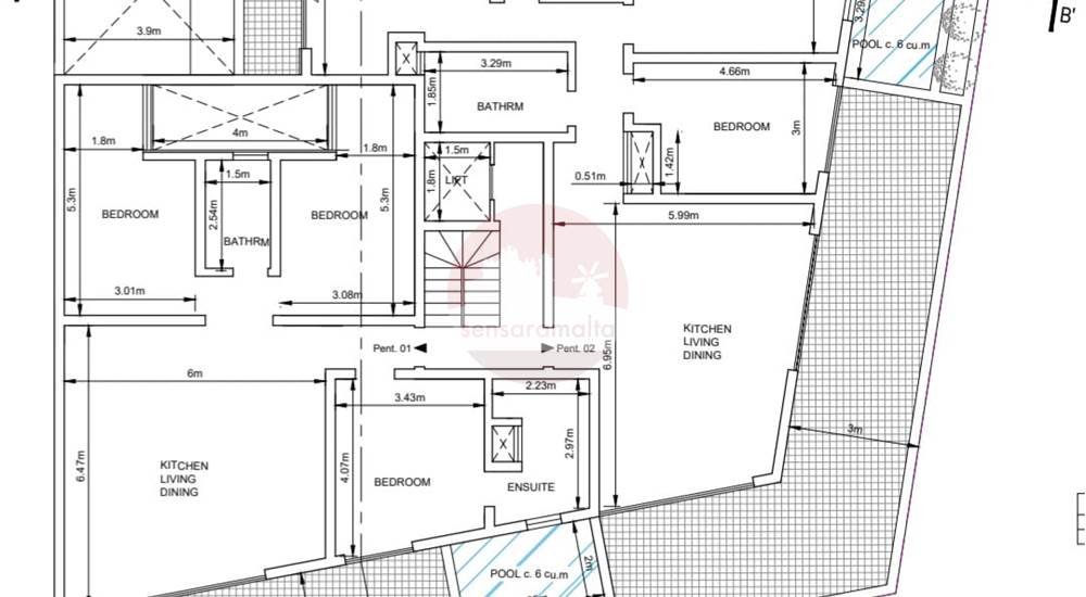
Zabbar- 3 bedroom Penthouse Fully finished + Airspace
Penthouse for sale • Zabbar
In Zabbar comes this 3 bedroom penthouse on plan, served with lift and fully finished with airspace. Target completion Q3- 2026.
It consists openplan K/L/D over looking a spacious terrace with ample space for pool, 3 bedoroms,(main bedroom with en-suite) and main bathroom. Optional garages available at an extra cost.
Freehold
Rooms and Features
Code
V023065
Locality
Zabbar
Property type
Penthouse
Price
405,000 €
Locals
1
Bedrooms
3
Bathrooms
2
Sqm
152
Terraces
1
Energetic class
Not applicable
Accessories:
Elevator, Double Glazing
Photos • Floorplans • Video
Photos
Options
Print Property sheet
Send property sheet by mail
Schedule a visit
RealEstate Brokers
Grima Keith
+356 7902 0587
+356 9998 6775
+356 9998 6779
keith@sensaramalta.com
Information request
Name *
Phone *
E-mail *
Request Details *
I authorize the processing of my personal data according Regolamento UE n. 679/2016 -
Privacy Policy
I authorize the processing of data for marketing purposes, promotional activities, commercial offers and market surveys.
Send
Share on
We also recommend
for Sale
Marsaxlokk - 1 Bedroom Finished Penthouse + Pool On Plan
375,945 €
for Sale
Zabbar - 1 Bedroom Penthouse with Terrace + Airspace - On Plan
313,000 €
for Sale
San Gwann - 1 Bedroom Penthouse On Plan + Outdoor Area
254,000 €
Keep default settings X
Use of cookies
This site uses cookies. Our (own) cookies and those of our Partners (third party cookies) are used to offer you a unique experience with us. For this reason, together with our partners, we collect and process non-sensitive information (such as the identifier of your device or the pages you visit).
At any time you can delete, modify or verify the information you share in
Cookie preference
or in our
Cookie Policy
and
Privacy Policy
.
Necessary
Functional
Profiling
Analytics
Accept all
Decline all
Accept selected
Cookie preference