Toggle navigation
(+356) 2164 9500
(+356) 9998 6779
info@sensaramalta.com
Head Office - Sensara Malta
Triq Santa Marija, Safi
09.00 to 19.00 hrs
Monday to Saturday
Home
Properties
Sales
Rentals
Foreign
About us
Services
Contacts
Send your request
Previous
Next
282,000 €
CLICK HERE for DETAILED PHOTOS
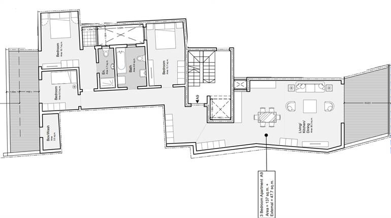
Qormi - 3 Bedroom Penthouse On Plan + Oudoor Area
Penthouse for sale • Qormi
Located in a new block in Qormi comes this three-bedroom penthouse currently on plan.
Consists of an open plan kitchen/dining/living complemented by a terrace, main bathroom, three double bedrooms with the master having a private terrace.
This penthouse is being offered in advanced shell form.
Construction already started and is estimate to be completed by 2026.
Rooms and Features
Code
V022955
Locality
Qormi
Property type
Penthouse
Price
282,000 €
Locals
1
Bedrooms
3
Bathrooms
1
Sqm
127
Terraces
2
Floor
5
Energetic class
Nondescript
Photos • Floorplans • Video
Photos
Options
Print Property sheet
Send property sheet by mail
Schedule a visit
RealEstate Brokers
Vella Ludric
+356 7909 1346
+356 9998 6779
+356 9998 6775
ludric@sensaramalta.com
Information request
Name *
Phone *
E-mail *
Request Details *
I authorize the processing of my personal data according Regolamento UE n. 679/2016 -
Privacy Policy
I authorize the processing of data for marketing purposes, promotional activities, commercial offers and market surveys.
Send
Share on
We also recommend
for Sale
Paola - 2 Bedroom Penthouse + Airspace In Shell Form On Plan
230,500 €
for Sale
Balzan - 3 Bedroom Finished Penthouse Ready Built
583,500 €
for Sale
Fgura - 2 Bedroom Fully Finished Penthouse
370,000 €
Keep default settings X
Use of cookies
This site uses cookies. Our (own) cookies and those of our Partners (third party cookies) are used to offer you a unique experience with us. For this reason, together with our partners, we collect and process non-sensitive information (such as the identifier of your device or the pages you visit).
At any time you can delete, modify or verify the information you share in
Cookie preference
or in our
Cookie Policy
and
Privacy Policy
.
Necessary
Functional
Profiling
Analytics
Accept all
Decline all
Accept selected
Cookie preference