Toggle navigation
(+356) 2164 9500
(+356) 9998 6779
info@sensaramalta.com
Head Office - Sensara Malta
Triq Santa Marija, Safi
09.00 to 19.00 hrs
Monday to Saturday
Home
Properties
Sales
Rentals
Foreign
About us
Services
Contacts
Send your request
Previous
Next
292,000 €
CLICK HERE for DETAILED PHOTOS
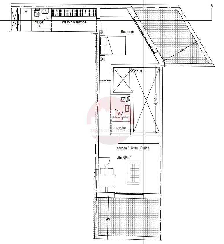
San Gwann - 1 Bedroom Penthouse On Plan + Outdoor Area
Penthouse for sale • San Gwann
Located on the fifth floor in a new block in San Gwann comes this one-bedroom penthouse currently on plan.
Consists of an open plan kitchen/dining/living complemented by a terrace, a laundry room, main bathroom, double bedroom having it's own private terrace, walk-in-wardrobe and an ensuite bathroom.
This apartment is being offered in advanced shell form.
Construction has started and is estimate to be completed by 2026.
Rooms and Features
Code
V022954
Locality
San Gwann
Property type
Penthouse
Price
292,000 €
Locals
1
Bedrooms
1
Bathrooms
2
Sqm
60
Terraces
2
Floor
5
Energetic class
Nondescript
Photos • Floorplans • Video
Photos
Options
Print Property sheet
Send property sheet by mail
Schedule a visit
RealEstate Brokers
Zahra Gaynor
+356 7933 5643
+356 9998 6775
+356 9998 6779
gaynor@sensaramalta.com
Information request
Name *
Phone *
E-mail *
Request Details *
I authorize the processing of my personal data according Regolamento UE n. 679/2016 -
Privacy Policy
I authorize the processing of data for marketing purposes, promotional activities, commercial offers and market surveys.
Send
Share on
We also recommend
for Sale
Birkirkara - 3 Bedroom Finished Penthouse With Pool+Airspace Ready Built
590,000 €
for Sale
Iklin - 2 Bedroom Penthouse With Massive Terrace
400,000 €
for Sale
B'Bugia - 2 bedroom Penthouse +surrounding terrace
385,500 €
Keep default settings X
Use of cookies
This site uses cookies. Our (own) cookies and those of our Partners (third party cookies) are used to offer you a unique experience with us. For this reason, together with our partners, we collect and process non-sensitive information (such as the identifier of your device or the pages you visit).
At any time you can delete, modify or verify the information you share in
Cookie preference
or in our
Cookie Policy
and
Privacy Policy
.
Necessary
Functional
Profiling
Analytics
Accept all
Decline all
Accept selected
Cookie preference