Toggle navigation
(+356) 2164 9500
(+356) 9998 6779
info@sensaramalta.com
Head Office - Sensara Malta
Triq Santa Marija, Safi
09.00 to 19.00 hrs
Monday to Saturday
Home
Properties
Sales
Rentals
Foreign
About us
Services
Contacts
Send your request
Previous
Next
445,000 €
CLICK HERE for DETAILED PHOTOS
Mqabba - Unconverted 3 Bedroom Townhouse + Roof + Yard
Town House for sale • Mqabba
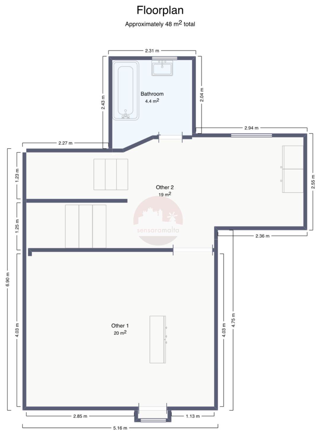
In Mqabba comes an unconverted Townhouse which has a very good potential as a property once converted, this will make a lovely 3-bedroom home.
The property currently consists of a welcoming hallway, a stone stairway on the side, a kitchen, a dining, a bathroom, a central courtyard, two additional rooms, and another yard..
On the first floor, one finds a front-facing bedroom with a balcony and a bathroom.
Roof and airspace.
Freehold
Rooms and Features
Code
V022401
Locality
Mqabba
Property type
Town House
Price
445,000 €
Locals
1
Sqm
142
Energetic class
Not applicable
Photos • Floorplans • Video
Photos
Options
Print Property sheet
Send property sheet by mail
Schedule a visit
RealEstate Brokers
Schembri Maria Pawla
+356 7732 8183
+356 9998 6779
+356 9998 6775
pawla@sensaramalta.com
Information request
Name *
Phone *
E-mail *
Request Details *
I authorize the processing of my personal data according Regolamento UE n. 679/2016 -
Privacy Policy
I authorize the processing of data for marketing purposes, promotional activities, commercial offers and market surveys.
Send
Share on
We also recommend
for Sale
Rabat - Unconverted 2 Bedroom Townhouse
578,000 €
for Sale
Kalkara - Unconverted 240sqm Town House
819,000 €
for Sale
Qormi - 4 Bedroom Townhouse in an Urban Conservation Area
563,000 €
Keep default settings X
Use of cookies
This site uses cookies. Our (own) cookies and those of our Partners (third party cookies) are used to offer you a unique experience with us. For this reason, together with our partners, we collect and process non-sensitive information (such as the identifier of your device or the pages you visit).
At any time you can delete, modify or verify the information you share in
Cookie preference
or in our
Cookie Policy
and
Privacy Policy
.
Necessary
Functional
Profiling
Analytics
Accept all
Decline all
Accept selected
Cookie preference