Toggle navigation
(+356) 2164 9500
(+356) 9998 6779
info@sensaramalta.com
Head Office - Sensara Malta
Triq Santa Marija, Safi
09.00 to 19.00 hrs
Monday to Saturday
Home
Properties
Sales
Rentals
Foreign
About us
Services
Contacts
Send your request
Previous
Next
445,000 €
CLICK HERE for DETAILED PHOTOS
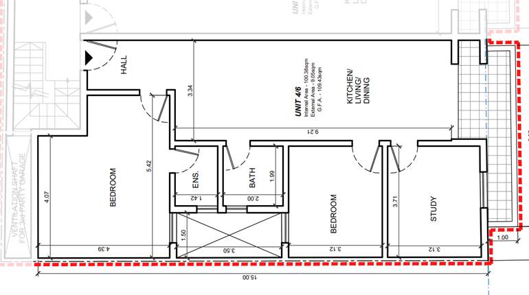
Pieta, Already Built Fully Finished circa 143sqm Ground Floor- 3 Bed Apartment + Yard
3+ bedroom apartment for sale • Pieta
** Further Reduction for Sensara Malta Clients **
In a good area in Pieta comes this already built ground floor apartment which has a maisonette layout - ideal for prospective buyers looking for a ground floor ( no stairs ) property with a large yard.
This apartment features a 3-bedroom ground-floor layout. All the bedrooms are served with en-suite facilities, a box room, a master bathroom, an internal yard, and a very well-sized backyard.
The property is being offered fully finished, including bathrooms and internal doors.
Freehold.
Rooms and Features
Code
V022062
Locality
Pieta
Property type
3+ bedroom apartment
Price
445,000 €
Locals
1
Bedrooms
3
Bathrooms
4
Sqm
143
Terraces
1
Energetic class
Not applicable
Property Conditions
New
Photos • Floorplans • Video
Photos
Options
Print Property sheet
Send property sheet by mail
Schedule a visit
RealEstate Brokers
Schembri Maria Pawla
+356 7732 8183
+356 9998 6779
+356 9998 6775
pawla@sensaramalta.com
Information request
Name *
Phone *
E-mail *
Request Details *
I authorize the processing of my personal data according Regolamento UE n. 679/2016 -
Privacy Policy
I authorize the processing of data for marketing purposes, promotional activities, commercial offers and market surveys.
Send
Share on
We also recommend
for Sale
Xemxija - 3 Bedroom 3rd Floor Finished Apartment On Plan
360,000 €
for Sale
Rabat - 3 Bedroom Finished Luxurious Apartment + Pool + Terrace + Views
2,800,000 €
for Sale
Floriana - Traditional 4th Floor 2 Bedroom Apartment + Roof
307,000 €
Keep default settings X
Use of cookies
This site uses cookies. Our (own) cookies and those of our Partners (third party cookies) are used to offer you a unique experience with us. For this reason, together with our partners, we collect and process non-sensitive information (such as the identifier of your device or the pages you visit).
At any time you can delete, modify or verify the information you share in
Cookie preference
or in our
Cookie Policy
and
Privacy Policy
.
Necessary
Functional
Profiling
Analytics
Accept all
Decline all
Accept selected
Cookie preference