Toggle navigation
(+356) 2164 9500
(+356) 9998 6779
info@sensaramalta.com
Head Office - Sensara Malta
Triq Santa Marija, Safi
09.00 to 19.00 hrs
Monday to Saturday
Home
Properties
Sales
Rentals
Foreign
About us
Services
Contacts
Send your request
Previous
Next
535,000 €
CLICK HERE for DETAILED PHOTOS
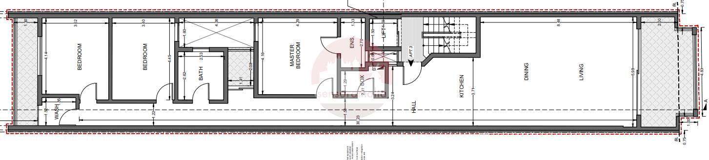
Mosta - 210sqm 2nd Floor 3 Double Bedroom Finished Apartment + Terrace
3+ bedroom apartment for sale • Mosta
New development in the hear of Mosta comes this spacious circa 210sqm situated on the 2nd floor in a small residential block of only 4 units.
The property is already built and highly finished.
The layout consists of a huge open plan overlooking a front terrace of circa 18sqm , box room ,master bathroom, 3 double bedrooms of which main is served with ensuit, washroom, and back terrace.
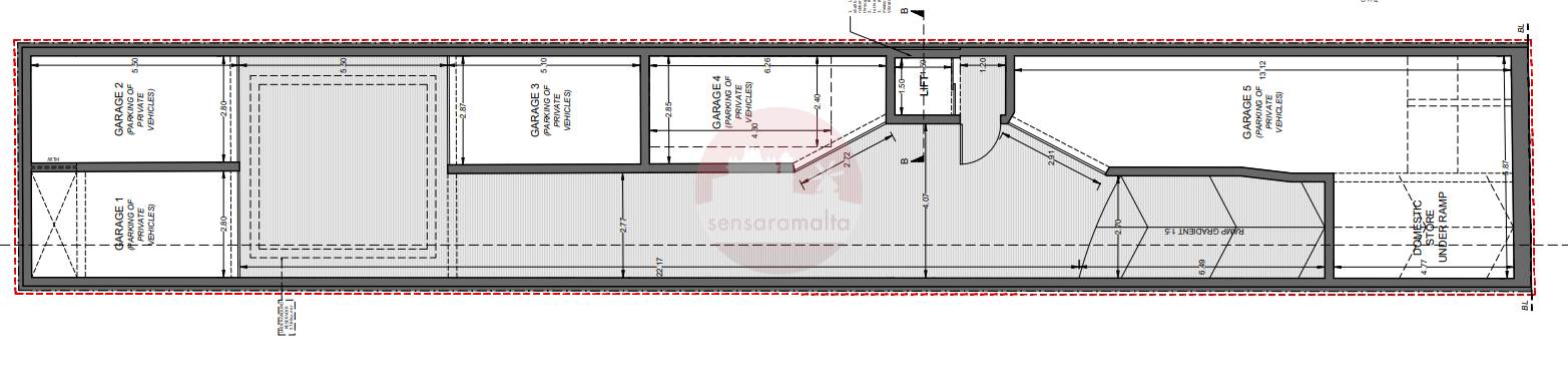
Interconnected car spaces are available
freehold.
Rooms and Features
Code
V021508
Locality
Mosta
Property type
3+ bedroom apartment
Price
535,000 €
Locals
1
Bedrooms
3
Bathrooms
2
Sqm
217
Balconies
2
Floor
2
Energetic class
Not applicable
Property Conditions
New
Photos • Floorplans • Video
Photos
Options
Print Property sheet
Send property sheet by mail
Schedule a visit
RealEstate Brokers
Schembri Maria Pawla
+356 7732 8183
+356 9998 6779
+356 9998 6775
pawla@sensaramalta.com
Information request
Name *
Phone *
E-mail *
Request Details *
I authorize the processing of my personal data according Regolamento UE n. 679/2016 -
Privacy Policy
I authorize the processing of data for marketing purposes, promotional activities, commercial offers and market surveys.
Send
Share on
We also recommend
for Sale
Mosta - 2 Bedroom + Study Finished Apartment
384,000 €
for Sale
Mosta, Already Built 3 Bedroom Elevated Maisonette with back yard
430,000 €
for Sale
Pieta, Already Built Fully Finished circa 143sqm Ground Floor- 3 Bed Apartment + Yard
445,000 €
Keep default settings X
Use of cookies
This site uses cookies. Our (own) cookies and those of our Partners (third party cookies) are used to offer you a unique experience with us. For this reason, together with our partners, we collect and process non-sensitive information (such as the identifier of your device or the pages you visit).
At any time you can delete, modify or verify the information you share in
Cookie preference
or in our
Cookie Policy
and
Privacy Policy
.
Necessary
Functional
Profiling
Analytics
Accept all
Decline all
Accept selected
Cookie preference