Toggle navigation
(+356) 2164 9500
(+356) 9998 6779
info@sensaramalta.com
Head Office - Sensara Malta
Triq Santa Marija, Safi
09.00 to 19.00 hrs
Monday to Saturday
Home
Properties
Sales
Rentals
Foreign
About us
Services
Contacts
Send your request
Previous
Next
363,000 €
CLICK HERE for DETAILED PHOTOS
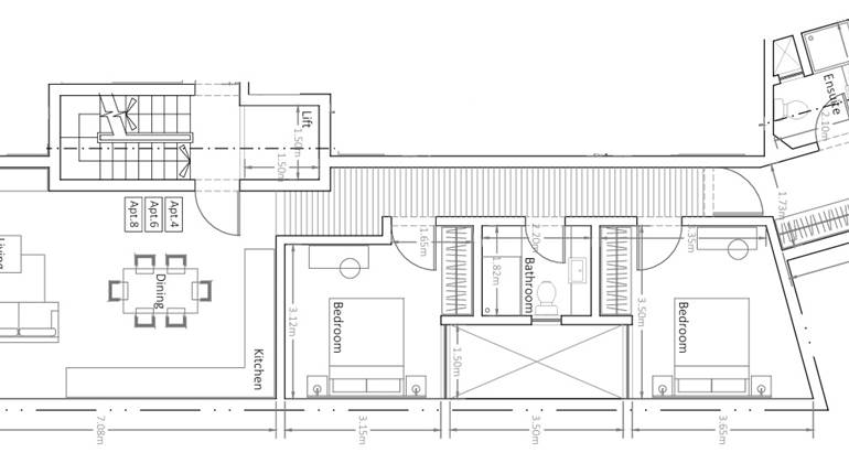
Zebbug - 3 Bedroom Apartment With Pool On Plan
3+ bedroom apartment for sale • Zebbug
Three-bedroom ground floor apartment for sale in Zebbug, Malta, featuring a communal swimming pool. The layout includes an open-plan kitchen/dining/living with a balcony facing the pool area, bathroom, three-bedrooms and a laundry room. This project is estimate to be finished by the end of 2026 and will be offered in shell form with all common parts ready. Optional garages are available at an extra price.
Rooms and Features
Code
V021053
Locality
Zebbug
Property type
3+ bedroom apartment
Price
363,000 €
Locals
1
Bedrooms
3
Bathrooms
1
Sqm
134
Garages
1
Balconies
1
Floor
Ground floor
Energetic class
Nondescript
Photos • Floorplans • Video
Photos
Options
Print Property sheet
Send property sheet by mail
Schedule a visit
RealEstate Brokers
Zahra Gaynor
+356 7933 5643
+356 9998 6775
+356 9998 6779
gaynor@sensaramalta.com
Information request
Name *
Phone *
E-mail *
Request Details *
I authorize the processing of my personal data according Regolamento UE n. 679/2016 -
Privacy Policy
I authorize the processing of data for marketing purposes, promotional activities, commercial offers and market surveys.
Send
Share on
We also recommend
for Sale
Fgura - 3 Bedroom 1st Floor Finished Apartment On Plan
317,500 €
for Sale
Qrendi - 3 Bedroom 2nd Floor Finished Apartment On Plan
497,000 €
for Sale
Birkirkara - 3rd Floor 3 Bedroom Apartment
330,000 €
Keep default settings X
Use of cookies
This site uses cookies. Our (own) cookies and those of our Partners (third party cookies) are used to offer you a unique experience with us. For this reason, together with our partners, we collect and process non-sensitive information (such as the identifier of your device or the pages you visit).
At any time you can delete, modify or verify the information you share in
Cookie preference
or in our
Cookie Policy
and
Privacy Policy
.
Necessary
Functional
Profiling
Analytics
Accept all
Decline all
Accept selected
Cookie preference