Toggle navigation
(+356) 2164 9500
(+356) 9998 6779
info@sensaramalta.com
Head Office - Sensara Malta
Triq Santa Marija, Safi
09.00 to 19.00 hrs
Monday to Saturday
Home
Properties
Sales
Rentals
Foreign
About us
Services
Contacts
Send your request
Previous
Next
317,000 €
CLICK HERE for DETAILED PHOTOS
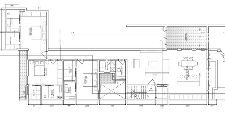
Zebbug - 4 Bedroom Apt + Roof + Half Airspace
3+ bedroom apartment for sale • Zebbug
Centrally Located in Zebbug and close to amenities comes this 4 bedroom Apartment which can easily be split in 2 units, in a small block of only 4 Apartments set on 1st Floor(NO LIFT). This property also enjoys Full Use of Roof and Half Owner Ship. Structurally Sound but in need of modernization.
Set on a squarish layout one finds a well sized open plan kitchen/living/dining on the side one finds the first bedroom with a front balcony, while further in one finds an internal yard, main bathroom, another bedroom and a laundry room on the other side there's another bedroom also with a front balcony, bathroom and last bedroom.
This Apartment is set in a great location ideal for rental investment. It has also a perpetual ground rent which can easily be redeemed.
TO REALLY APPRECIATE THE PROPERTY VIEWING IS A MUST!!!!!!
Rooms and Features
Code
V020188
Locality
Zebbug
Property type
3+ bedroom apartment
Price
317,000 €
Locals
1
Bedrooms
4
Bathrooms
2
Sqm
150
Balconies
2
Floor
1
Energetic class
Nondescript
Property Conditions
Good
Photos • Floorplans • Video
Photos
Options
Print Property sheet
Send property sheet by mail
Schedule a visit
RealEstate Brokers
Attard Charlene
+356 9996 8105
+356 9998 6779
+356 2164 9500
charlene@sensaramalta.com
Information request
Name *
Phone *
E-mail *
Request Details *
I authorize the processing of my personal data according Regolamento UE n. 679/2016 -
Privacy Policy
I authorize the processing of data for marketing purposes, promotional activities, commercial offers and market surveys.
Send
Share on
We also recommend
for Sale
Nadur Gozo - 3 Bedroom Partly Finished Apartment + Communal Pool + Recreational Land
360,000 €
for Sale
Mosta, Already Built 3 Bedroom Elevated Maisonette with back yard
430,000 €
for Sale
Ghaxaq - 3 Bedroom Finished 3rd Floor Apartment On Plan
358,500 €
Keep default settings X
Use of cookies
This site uses cookies. Our (own) cookies and those of our Partners (third party cookies) are used to offer you a unique experience with us. For this reason, together with our partners, we collect and process non-sensitive information (such as the identifier of your device or the pages you visit).
At any time you can delete, modify or verify the information you share in
Cookie preference
or in our
Cookie Policy
and
Privacy Policy
.
Necessary
Functional
Profiling
Analytics
Accept all
Decline all
Accept selected
Cookie preference