Toggle navigation
(+356) 2164 9500
(+356) 9998 6779
info@sensaramalta.com
Head Office - Sensara Malta
Triq Santa Marija, Safi
09.00 to 19.00 hrs
Monday to Saturday
Home
Properties
Sales
Rentals
Foreign
About us
Services
Contacts
Send your request
Previous
Next
575,000 €
CLICK HERE for DETAILED PHOTOS
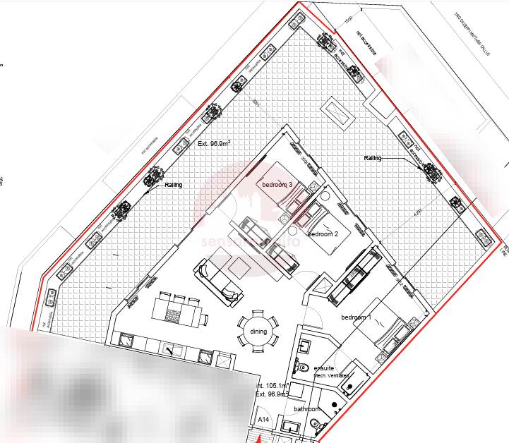
Zurrieq - 202sqm 3 Bedroom Finished Penthouse + Airspace
Penthouse for sale • Zurrieq
In the heart of Zurrieq comes this newly built 3 bedroom highly finished , insulated penthouse with its full airspace is comfortable assessable from same stairs and not from hatch.
The layout is a corner and squarish with all rooms overlooking it's own terrace . Upon entrance one will find a well sized bright open plan, main bathroom, 3 bedroom of which main is served with ensuit.
A corner terrace which is accessible from all rooms.
On the 5th floor on will find its own private roof.
Optional interconnected garages are also available starting from 58k
Freehold
Rooms and Features
Code
V019244
Locality
Zurrieq
Property type
Penthouse
Price
575,000 €
Locals
1
Bedrooms
3
Bathrooms
3
Sqm
202.4
Terraces
1
sqm Terrace
969
Floor
4.5
Energetic class
Not applicable
Property Conditions
Under Construction
Photos • Floorplans • Video
Photos
Options
Print Property sheet
Send property sheet by mail
Schedule a visit
RealEstate Brokers
Schembri Maria Pawla
+356 7732 8183
+356 9998 6779
+356 9998 6775
pawla@sensaramalta.com
Information request
Name *
Phone *
E-mail *
Request Details *
I authorize the processing of my personal data according Regolamento UE n. 679/2016 -
Privacy Policy
I authorize the processing of data for marketing purposes, promotional activities, commercial offers and market surveys.
Send
Share on
We also recommend
for Sale
Zebbug - 3 Bedroom Finished Penthouse + Airspace + Optional Garage
527,000 €
for Sale
St Venera - 1 Bedroom Ready Built Finished Penthouse
275,000 €
for Sale
Dingli - 3 Bedroom Penthouse + Pool - Shell Form
452,000 €
Keep default settings X
Use of cookies
This site uses cookies. Our (own) cookies and those of our Partners (third party cookies) are used to offer you a unique experience with us. For this reason, together with our partners, we collect and process non-sensitive information (such as the identifier of your device or the pages you visit).
At any time you can delete, modify or verify the information you share in
Cookie preference
or in our
Cookie Policy
and
Privacy Policy
.
Necessary
Functional
Profiling
Analytics
Accept all
Decline all
Accept selected
Cookie preference