Toggle navigation
(+356) 2164 9500
(+356) 9998 6779
info@sensaramalta.com
Head Office - Sensara Malta
Triq Santa Marija, Safi
09.00 to 19.00 hrs
Monday to Saturday
Home
Properties
Sales
Rentals
Foreign
About us
Services
Contacts
Send your request
Previous
Next
395,000 €
CLICK HERE for DETAILED PHOTOS
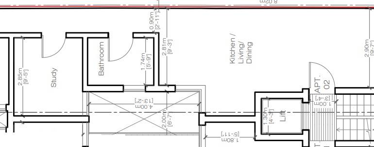
Msida - 3 Bedroom Apartment
3+ bedroom apartment for sale • Msida
The apartments in blocks A and B, located through floor one and floor five, offer a comfortable and stylish living space.
These units feature three bedrooms and two bathrooms, making them perfect for couples, and small families. The
apartments are also enhanced by the addition of front and back balconies, offering residents a stunning view of the
surrounding area and the perfect space for outdoor relaxation.
Rooms and Features
Code
V018939
Locality
Msida
Property type
3+ bedroom apartment
Price
395,000 €
Locals
1
Bedrooms
3
Sqm
142
Energetic class
Nondescript
Photos • Floorplans • Video
Photos
Options
Print Property sheet
Send property sheet by mail
Schedule a visit
RealEstate Brokers
Formosa Norita
+356 7956 7800
+356 9998 6779
+356 9998 6775
norita@sensaramalta.com
Information request
Name *
Phone *
E-mail *
Request Details *
I authorize the processing of my personal data according Regolamento UE n. 679/2016 -
Privacy Policy
I authorize the processing of data for marketing purposes, promotional activities, commercial offers and market surveys.
Send
Share on
We also recommend
for Sale
Zurrieq - New & Ready Built 4th FL Penthouse+Pool
570,000 €
for Sale
Ghaxaq - 3 Bedroom Finished 2nd Floor Apartment On Plan
353,000 €
for Sale
Marsascala - 3 Bedroom Fully Furnished Apartment + Optional Garage
495,000 €
Keep default settings X
Use of cookies
This site uses cookies. Our (own) cookies and those of our Partners (third party cookies) are used to offer you a unique experience with us. For this reason, together with our partners, we collect and process non-sensitive information (such as the identifier of your device or the pages you visit).
At any time you can delete, modify or verify the information you share in
Cookie preference
or in our
Cookie Policy
and
Privacy Policy
.
Necessary
Functional
Profiling
Analytics
Accept all
Decline all
Accept selected
Cookie preference