Toggle navigation
(+356) 2164 9500
(+356) 9998 6779
info@sensaramalta.com
Head Office - Sensara Malta
Triq Santa Marija, Safi
09.00 to 19.00 hrs
Monday to Saturday
Home
Properties
Sales
Rentals
Foreign
About us
Services
Contacts
Send your request
Previous
Next
307,000 €
CLICK HERE for DETAILED PHOTOS
Nadur Gozo - 4 Bedroom Maisonette + Airspace
Maisonette for sale • Nadur Gozo
First floor maisonette situated in the village of Nadur Gozo.
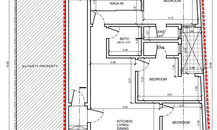
This property consists of a large sitting room which is large enough to make it as an open-plan kitchen/living/dining area, three double bedrooms, a separate kitchen which can be turned into a fourth bedroom, main bathroom, front balcony and full ownership of roof with airspace. There is a great potential to build another apartment on top of it. Common parts are wide enough to make a lift. Property is in need of a modern renovation, however it is structurally sound and its full of natural light. Freehold.
Rooms and Features
Code
V010399
Locality
Nadur Gozo
Property type
Maisonette
Price
307,000 €
Locals
1
Bedrooms
7
Bathrooms
1
Sqm
115
Balconies
1
Terraces
1
Energetic class
Nondescript
Photos • Floorplans • Video
Photos
Options
Print Property sheet
Send property sheet by mail
Schedule a visit
RealEstate Brokers
Xiberras Joanie
+356 9985 2678
+356 9998 6779
+356 9998 6775
joanie.gozo@sensaramalta.com
Information request
Name *
Phone *
E-mail *
Request Details *
I authorize the processing of my personal data according Regolamento UE n. 679/2016 -
Privacy Policy
I authorize the processing of data for marketing purposes, promotional activities, commercial offers and market surveys.
Send
Share on
We also recommend
for Sale
Zurrieq - 3 Bedroom Furnished Elevated Maisonette
405,000 €
for Sale
San Gwann - Circa 160sqm 3 Bedroom Elevated Fully Finished Maisonette + Large Yard
450,000 €
for Sale
Luqa- 2 bedrooms elevated Maisonette (On Plan)
430,000 €
Keep default settings X
Use of cookies
This site uses cookies. Our (own) cookies and those of our Partners (third party cookies) are used to offer you a unique experience with us. For this reason, together with our partners, we collect and process non-sensitive information (such as the identifier of your device or the pages you visit).
At any time you can delete, modify or verify the information you share in
Cookie preference
or in our
Cookie Policy
and
Privacy Policy
.
Necessary
Functional
Profiling
Analytics
Accept all
Decline all
Accept selected
Cookie preference