Toggle navigation
(+356) 2164 9500
(+356) 9998 6779
info@sensaramalta.com
Head Office - Sensara Malta
Triq Santa Marija, Safi
09.00 to 19.00 hrs
Monday to Saturday
Home
Properties
Sales
Rentals
Foreign
About us
Services
Contacts
Send your request
Previous
Next
630,000 €
CLICK HERE for DETAILED PHOTOS
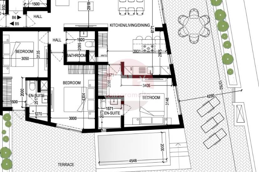
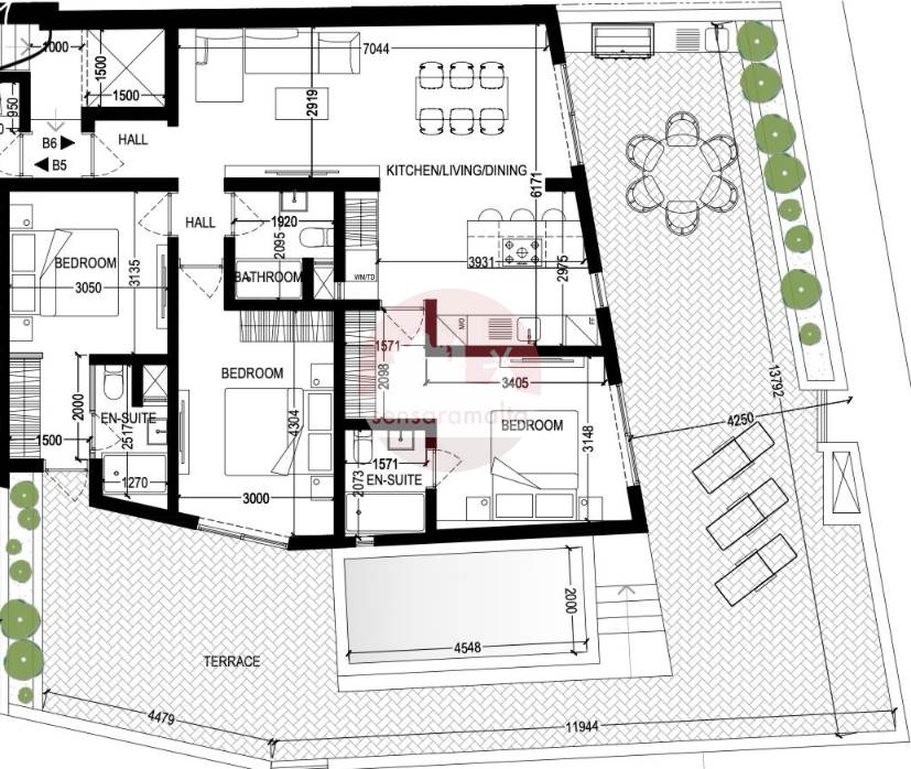
Kirkop - 2 Bedroom 4th Floor Duplex Fully Finished Penthouse On Plan
Penthouse for sale • Kirkop
In Kirkop comes a fourth-floor two-bedroom duplex penthouse estimated to be completed by the end of 2027.
The layout comprsies of 2 floors. On the fourth floor, one finds an open plan K/D/L with a front terrace and on out door kitchinette.
On the lower floor, one finds the main bathroom and two double bedrooms. The main bedroom includes an en-suite and balcony, and the second bedroom has its own balcony.
On the top floor area for entertainment will come with this property
This property will be sold fully finished, including bathrooms and internal doors. Optional garages are available at an extra price starting from 55K
Rooms and Features
Code
V023950
Locality
Kirkop
Property type
Penthouse
Price
630,000 €
Locals
1
Bedrooms
3
Bathrooms
3
Sqm
220
Terraces
1
Energetic class
Nondescript
Photos • Floorplans • Video
Photos
Options
Print Property sheet
Send property sheet by mail
Schedule a visit
RealEstate Brokers
Caruana Dylan
+356 9960 6829
+356 9998 6779
+356 2164 9500
dylan@sensaramalta.com
Information request
Name *
Phone *
E-mail *
Request Details *
I authorize the processing of my personal data according Regolamento UE n. 679/2016 -
Privacy Policy
I authorize the processing of data for marketing purposes, promotional activities, commercial offers and market surveys.
Send
Share on
We also recommend
for Sale
Mosta - 3 Bedroom Finished Duplex Penthouse Ready Built
610,000 €
for Sale
Mosta - 307sqm Penthouse with Huge terrace
733,000 €
for Sale
Qormi - 1 Bedroom Penthouse On Plan
275,000 €
Keep default settings X
Use of cookies
This site uses cookies. Our (own) cookies and those of our Partners (third party cookies) are used to offer you a unique experience with us. For this reason, together with our partners, we collect and process non-sensitive information (such as the identifier of your device or the pages you visit).
At any time you can delete, modify or verify the information you share in
Cookie preference
or in our
Cookie Policy
and
Privacy Policy
.
Necessary
Functional
Profiling
Analytics
Accept all
Decline all
Accept selected
Cookie preference