Toggle navigation
(+356) 2164 9500
(+356) 9998 6779
info@sensaramalta.com
Head Office - Sensara Malta
Triq Santa Marija, Safi
09.00 to 19.00 hrs
Monday to Saturday
Home
Properties
Sales
Rentals
Foreign
About us
Services
Contacts
Send your request
Previous
Next
338,000 €
CLICK HERE for DETAILED PHOTOS
Sannat - 2 Bedroom Penthouse With ODZ Views
Penthouse for sale • Sannat Gozo
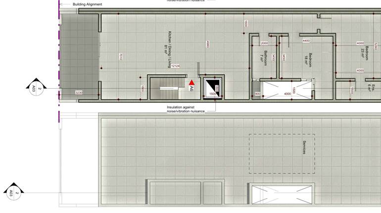
Experience the ultimate in modern living with this exceptional 2-bedroom, 2-bathroom penthouse located in the tranquil village of Sannat. Designed to showcase breath taking views of the surrounding countryside and beyond, this penthouse is perfect for those seeking both luxury and serenity. Currently on plan with construction underway, the property offers thoughtfully designed layout that includes a spacious kitchen/living/dining with a front terrace ideal for relaxing and entertaining. This penthouse will be sold in shell form with common parts ready. Optional garage is available at an extra price.
Rooms and Features
Code
V020716
Locality
Sannat Gozo
Property type
Penthouse
Price
338,000 €
Locals
1
Bedrooms
2
Bathrooms
2
Sqm
120
Balconies
1
Terraces
1
Energetic class
Nondescript
Photos • Floorplans • Video
Photos
Options
Print Property sheet
Send property sheet by mail
Schedule a visit
RealEstate Brokers
Xiberras Joanie
+356 9985 2678
+356 9998 6779
+356 9998 6775
joanie.gozo@sensaramalta.com
Information request
Name *
Phone *
E-mail *
Request Details *
I authorize the processing of my personal data according Regolamento UE n. 679/2016 -
Privacy Policy
I authorize the processing of data for marketing purposes, promotional activities, commercial offers and market surveys.
Send
Share on
We also recommend
for Sale
Nadur - Penthouse 3 Bedroom + Airspace
369,000 €
for Sale
Rabat - 3 Bedroom Finished Luxurious Penthouse + Pool + Terrace + Views
2,200,000 €
for Sale
Marsascala - 230sqm 2 Bedroom Fully Finished Penthouse + Terrace + Optional Garage
605,000 €
Keep default settings X
Use of cookies
This site uses cookies. Our (own) cookies and those of our Partners (third party cookies) are used to offer you a unique experience with us. For this reason, together with our partners, we collect and process non-sensitive information (such as the identifier of your device or the pages you visit).
At any time you can delete, modify or verify the information you share in
Cookie preference
or in our
Cookie Policy
and
Privacy Policy
.
Necessary
Functional
Profiling
Analytics
Accept all
Decline all
Accept selected
Cookie preference