Toggle navigation
(+356) 2164 9500
(+356) 9998 6779
info@sensaramalta.com
Head Office - Sensara Malta
Triq Santa Marija, Safi
09.00 to 19.00 hrs
Monday to Saturday
Home
Properties
Sales
Rentals
Foreign
About us
Services
Contacts
Send your request
Previous
Next
350,000 €
CLICK HERE for DETAILED PHOTOS
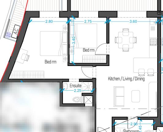
Ta' Xbiex - 1st Floor 2 Bedroom Finished Apartment + Yard
2 bedroom apartment for sale • Ta' Xbiex
New development in Ta Xbiex , minutes away from the marina comes this 2 bedroom apartment which is situated in a small block of only 6 units , currently under constatation and it is due by June 2026.
The property layout consists of a 2 double bedrooms , one served with a front balcony and the main served with ensiut, master bathrooms and aback open plan served with a terrace.
The property is being offered finished excluding bathrooms and internal doors.
An optional, street level 4 car garage is also available at Eur 220,000
Freehold.
Rooms and Features
Code
V023311
Locality
Ta' Xbiex
Property type
2 bedroom apartment
Price
350,000 €
Locals
1
Bedrooms
2
Bathrooms
2
Sqm
101
Terraces
1
sqm Terrace
19
Floor
1
Energetic class
Not applicable
Property Conditions
Under Construction
Photos • Floorplans • Video
Photos
Options
Print Property sheet
Send property sheet by mail
Schedule a visit
RealEstate Brokers
Schembri Maria Pawla
+356 7732 8183
+356 9998 6779
+356 9998 6775
pawla@sensaramalta.com
Information request
Name *
Phone *
E-mail *
Request Details *
I authorize the processing of my personal data according Regolamento UE n. 679/2016 -
Privacy Policy
I authorize the processing of data for marketing purposes, promotional activities, commercial offers and market surveys.
Send
Share on
We also recommend
for Sale
Mosta, Already Built ** Finished 2 Bedroom Apartment with Terrace & Balcony ** optional Garages
343,000 €
for Sale
Fgura - 2 Bedroom First Floor Apartment On Plan
257,000 €
for Sale
Pieta Under Construction 3d floor 2 Bedroom Fully finished apartment
289,000 €
Keep default settings X
Use of cookies
This site uses cookies. Our (own) cookies and those of our Partners (third party cookies) are used to offer you a unique experience with us. For this reason, together with our partners, we collect and process non-sensitive information (such as the identifier of your device or the pages you visit).
At any time you can delete, modify or verify the information you share in
Cookie preference
or in our
Cookie Policy
and
Privacy Policy
.
Necessary
Functional
Profiling
Analytics
Accept all
Decline all
Accept selected
Cookie preference