Toggle navigation
(+356) 2164 9500
(+356) 9998 6779
info@sensaramalta.com
Head Office - Sensara Malta
Triq Santa Marija, Safi
09.00 to 19.00 hrs
Monday to Saturday
Home
Properties
Sales
Rentals
Foreign
About us
Services
Contacts
Send your request
Previous
Next
379,000 €
CLICK HERE for DETAILED PHOTOS
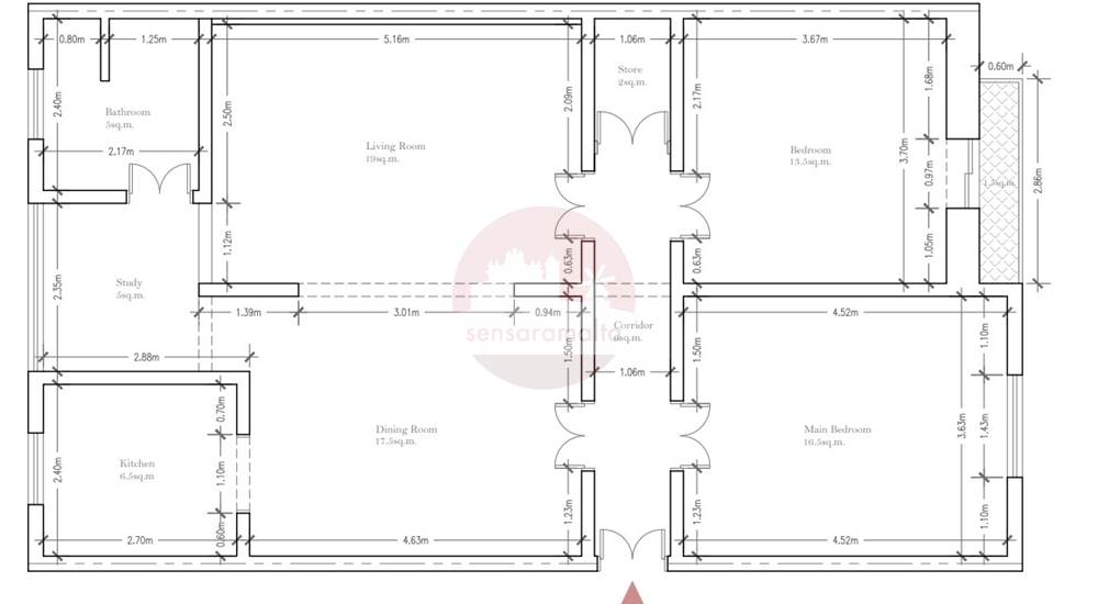
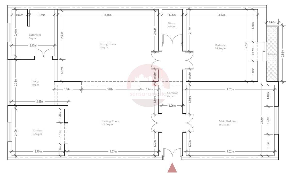
Gzira - 2 Bedroom Apartment
2 bedroom apartment for sale • Gzira
Located in Gzira, this bright and airy first-floor 2-bedroom apartment is served with a lift and offers a practical layout. It includes a main bedroom and a double bedroom with access to a front balcony, a main bathroom, a combined kitchen/dining/living area, and a study area.
The property also comes with part ownership of the roof and is being sold freehold.
Rooms and Features
Code
V023231
Locality
Gzira
Property type
2 bedroom apartment
Price
379,000 €
Locals
1
Bedrooms
2
Bathrooms
1
Sqm
100
Floor
1
Energetic class
Nondescript
Photos • Floorplans • Video
Photos
Options
Print Property sheet
Send property sheet by mail
Schedule a visit
RealEstate Brokers
Formosa Norita
+356 7956 7800
+356 9998 6779
+356 9998 6775
norita@sensaramalta.com
Information request
Name *
Phone *
E-mail *
Request Details *
I authorize the processing of my personal data according Regolamento UE n. 679/2016 -
Privacy Policy
I authorize the processing of data for marketing purposes, promotional activities, commercial offers and market surveys.
Send
Share on
We also recommend
for Sale
Ta' Xbiex - 2nd Floor 2 Bedroom Finished Apartment + 2 Balconies
340,000 €
for Sale
San Pawl il-Bahar - 2 Bedroom + Study Apt
282,000 €
for Sale
Fgura - 2 Bedroom Apartment On Plan
266,000 €
Keep default settings X
Use of cookies
This site uses cookies. Our (own) cookies and those of our Partners (third party cookies) are used to offer you a unique experience with us. For this reason, together with our partners, we collect and process non-sensitive information (such as the identifier of your device or the pages you visit).
At any time you can delete, modify or verify the information you share in
Cookie preference
or in our
Cookie Policy
and
Privacy Policy
.
Necessary
Functional
Profiling
Analytics
Accept all
Decline all
Accept selected
Cookie preference