Toggle navigation
(+356) 2164 9500
(+356) 9998 6779
info@sensaramalta.com
Head Office - Sensara Malta
Triq Santa Marija, Safi
09.00 to 19.00 hrs
Monday to Saturday
Home
Properties
Sales
Rentals
Foreign
About us
Services
Contacts
Send your request
Previous
Next
551,000 €
CLICK HERE for DETAILED PHOTOS
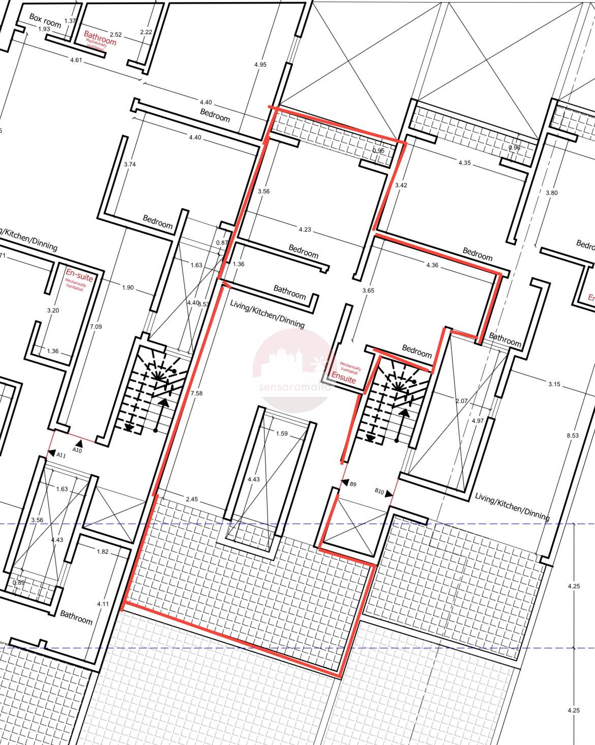
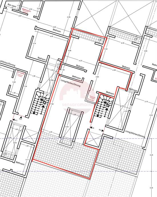
Mellieha Ghadira - 2 Bedroom Fifth Floor Apartment
2 bedroom apartment for sale • Mellieha
Presenting a brand-new apartment located in the sought-after area of Ghadira. Situated on the 5th floor, this property offers a modern design and a bright layout with an open-plan kitchen, living, and dining area leading onto a spacious front balcony that enjoys breathtaking sea views.
The apartment includes two bedrooms, two bathrooms, and a back balcony, providing both comfort and functionality.
This property is being offered highly finished, excluding internal doors and bathrooms, and is freehold. Optional garages are available at an extra price.
Rooms and Features
Code
V023030
Locality
Mellieha
Property type
2 bedroom apartment
Price
551,000 €
Locals
1
Bedrooms
2
Bathrooms
1
Sqm
117
Balconies
1
Terraces
1
Floor
5
Energetic class
Not applicable
Property Conditions
New
Accessories:
Double Glazing
Photos • Floorplans • Video
Photos
Options
Print Property sheet
Send property sheet by mail
Schedule a visit
RealEstate Brokers
Hughes Jeffrey
+356 9980 0004
+356 9998 6779
+356 9998 6775
hughes@sensaramalta.com
Information request
Name *
Phone *
E-mail *
Request Details *
I authorize the processing of my personal data according Regolamento UE n. 679/2016 -
Privacy Policy
I authorize the processing of data for marketing purposes, promotional activities, commercial offers and market surveys.
Send
Share on
We also recommend
for Sale
Rabat - 2 Bed Finished Luxurious Duplex Apartment + Private Pool + Terrace + Views
1,950,000 €
for Sale
Marsalforn Gozo - 2 Bedroom Furnished Apartment
228,000 €
for Sale
Kirkop - 2 Bedroom 1st Floor Fully Finished Apartment On Plan
325,000 €
Keep default settings X
Use of cookies
This site uses cookies. Our (own) cookies and those of our Partners (third party cookies) are used to offer you a unique experience with us. For this reason, together with our partners, we collect and process non-sensitive information (such as the identifier of your device or the pages you visit).
At any time you can delete, modify or verify the information you share in
Cookie preference
or in our
Cookie Policy
and
Privacy Policy
.
Necessary
Functional
Profiling
Analytics
Accept all
Decline all
Accept selected
Cookie preference