Toggle navigation
(+356) 2164 9500
(+356) 9998 6779
info@sensaramalta.com
Head Office - Sensara Malta
Triq Santa Marija, Safi
09.00 to 19.00 hrs
Monday to Saturday
Home
Properties
Sales
Rentals
Foreign
About us
Services
Contacts
Send your request
Previous
Next
1,950,000 €
CLICK HERE for DETAILED PHOTOS
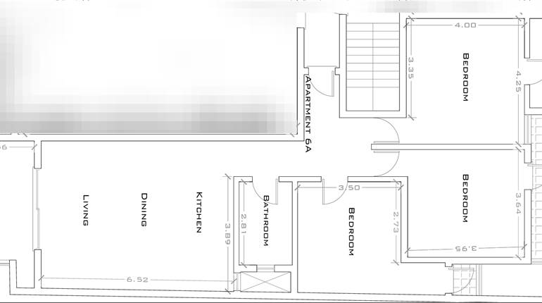
Rabat - 2 Bed Finished Luxurious Duplex Apartment + Private Pool + Terrace + Views
2 bedroom apartment for sale • Rabat
A ready-built, highly finished two-bedroom duplex apartment featuring elegant bathrooms and a modern VRV air-conditioning system.
The property offers open views from the terrace and a private swimming pool.
The property features two double bedrooms, both with ensuites, main bathroom and a front terrace with its own private pool at ground floor level.
On the first floor, you will find an open plan kitchen/dining/living and a main bathroom .
Perfect for those looking to retire in comfort, this apartment offers the ideal balance of downsizing to a manageable space while still enjoying a luxurious lifestyle.
Car spaces and garages are available at an additional price.
Rooms and Features
Code
V023122
Locality
Rabat
Property type
2 bedroom apartment
Price
1,950,000 €
Locals
1
Bedrooms
2
Bathrooms
3
Sqm
336
Floor
Ground floor
Energetic class
Nondescript
Photos • Floorplans • Video
Photos
Options
Print Property sheet
Send property sheet by mail
Schedule a visit
RealEstate Brokers
Jenkins Rita
+356 7712 7772
+356 9998 6779
+356 9998 6775
rita@sensaramalta.com
Information request
Name *
Phone *
E-mail *
Request Details *
I authorize the processing of my personal data according Regolamento UE n. 679/2016 -
Privacy Policy
I authorize the processing of data for marketing purposes, promotional activities, commercial offers and market surveys.
Send
Share on
We also recommend
for Sale
St Pauls Bay - 2 Bedroom Apartment Highly Finished
358,500 €
for Sale
Zabbar- Third floor 2 bedroom Apartment Fully finished
270,000 €
for Sale
Mosta, Already Built 1st floor 3 Bedroom Apartment with Terrace and Balconies
430,000 €
Keep default settings X
Use of cookies
This site uses cookies. Our (own) cookies and those of our Partners (third party cookies) are used to offer you a unique experience with us. For this reason, together with our partners, we collect and process non-sensitive information (such as the identifier of your device or the pages you visit).
At any time you can delete, modify or verify the information you share in
Cookie preference
or in our
Cookie Policy
and
Privacy Policy
.
Necessary
Functional
Profiling
Analytics
Accept all
Decline all
Accept selected
Cookie preference