Toggle navigation
(+356) 2164 9500
(+356) 9998 6779
info@sensaramalta.com
Head Office - Sensara Malta
Triq Santa Marija, Safi
09.00 to 19.00 hrs
Monday to Saturday
Home
Properties
Sales
Rentals
Foreign
About us
Services
Contacts
Send your request
Previous
Next
445,000 €
CLICK HERE for DETAILED PHOTOS
Naxxar - 2 Bedroom Penthouse Finished
Penthouse for sale • Naxxar
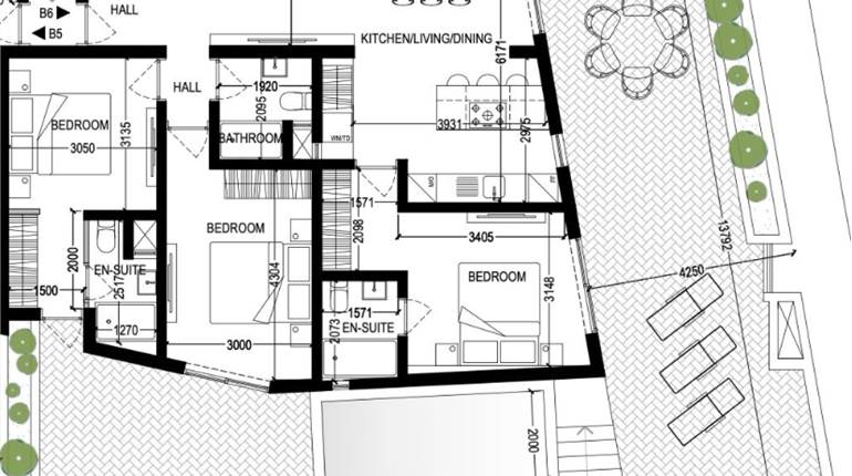
Within Naxxar comes this opportunity to acquire this 4th-floor 2-bedroom penthouse currently on plan, and it will be offered highly finished, excluding internal doors and bathrooms, and served with a lift.
It comprises an open-plan kitchen, a living/dining area overlooking a balcony, a master bedroom with an ensuite, another bedroom, and a main bathroom. Live in a safe and welcoming environment, ideal for your family.
Currently being built, completion date estimated to be the End March 2026
Optional lock-up garages/garage spaces are available at levels minus 1 and minus 2. Prices starting from €44,500
A perpetual ground rent of €116 for a penthouse and €10 per garage/garage space. This can be redeemed on contract.
Rooms and Features
Code
V022094
Locality
Naxxar
Property type
Penthouse
Price
445,000 €
Locals
2
Bedrooms
2
Bathrooms
2
Sqm
110
Balconies
1
Energetic class
Nondescript
Property Conditions
Under Construction
Photos • Floorplans • Video
Photos
Options
Print Property sheet
Send property sheet by mail
Schedule a visit
RealEstate Brokers
Hughes Jeffrey
+356 9980 0004
+356 9998 6779
+356 9998 6775
hughes@sensaramalta.com
Information request
Name *
Phone *
E-mail *
Request Details *
I authorize the processing of my personal data according Regolamento UE n. 679/2016 -
Privacy Policy
I authorize the processing of data for marketing purposes, promotional activities, commercial offers and market surveys.
Send
Share on
We also recommend
for Sale
Safi - 3 Bedroom Furnished Penthouse + Airspace + Views
460,000 €
for Sale
Ghajnsielem - 2 Bedroom Penthouse + Airspace
220,000 €
for Sale
Kirkop - 2 Bedroom 4th Floor Duplex Fully Finished Penthouse On Plan
630,000 €
Keep default settings X
Use of cookies
This site uses cookies. Our (own) cookies and those of our Partners (third party cookies) are used to offer you a unique experience with us. For this reason, together with our partners, we collect and process non-sensitive information (such as the identifier of your device or the pages you visit).
At any time you can delete, modify or verify the information you share in
Cookie preference
or in our
Cookie Policy
and
Privacy Policy
.
Necessary
Functional
Profiling
Analytics
Accept all
Decline all
Accept selected
Cookie preference