Toggle navigation
(+356) 2164 9500
(+356) 9998 6779
info@sensaramalta.com
Head Office - Sensara Malta
Triq Santa Marija, Safi
09.00 to 19.00 hrs
Monday to Saturday
Home
Properties
Sales
Rentals
Foreign
About us
Services
Contacts
Send your request
Previous
Next
575,000 €
CLICK HERE for DETAILED PHOTOS
Balzan - Penthouse - Furnished 3Bed/3Bath+Airspace
Penthouse for sale • Balzan
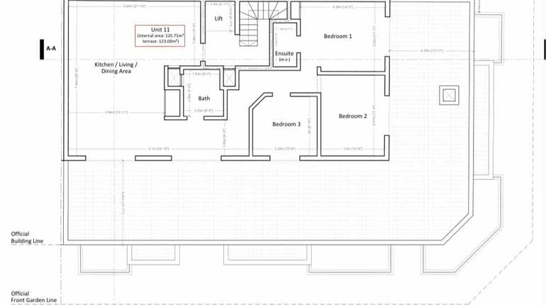
Centrally located in Balzan border with Attard yet close to all amenities comes this 3 Bedroom 3 Bathroom Penthouse with Airspace, on the 5th floor served with lift.
The property consist of open plan Kitchen/Living/Dining with a well sized front terrace. you also have a small space for the washing machine. Further in one finds the first bedroom which have the main bathroom connected to it but can easily be used for this room only, it also enjoys a small balcony. Second bedroom also with a bathroom and a small balcony, while at the back you’ll find the main bedroom with en-suite and a back terrace.
This property comes with AC in Every Room, Furnished, double glazed windows, insect screen, more electrical points and 6 persons lift.
Optional 1 car garage is also available at an extra cost.
Even though it makes a Lovely Home for a family it’s perfect also for Rental Investment since every bedroom have its own bathroom and balcony.
FREEHOLD…MUST SEE
Rooms and Features
Code
V017909
Locality
Balzan
Property type
Penthouse
Price
575,000 €
Locals
1
Bedrooms
3
Bathrooms
3
Sqm
155
Terraces
2
Floor
5
Energetic class
Not applicable
Property Conditions
Good
Accessories:
Air Conditioning
Photos • Floorplans • Video
Photos
Options
Print Property sheet
Send property sheet by mail
Schedule a visit
Information request
Name *
Phone *
E-mail *
Request Details *
I authorize the processing of my personal data according Regolamento UE n. 679/2016 -
Privacy Policy
I authorize the processing of data for marketing purposes, promotional activities, commercial offers and market surveys.
Send
Share on
We also recommend
for Sale
Birkirkara - 2 Bedroom Finished Penthouse + Airspace, On Plan
328,000 €
for Sale
Qormi - 3 Bedroom Duplex Penthouse with circa 162sqm Outdoor Area
410,000 €
for Sale
Swieqi - Finished Luxurious Penthouse With Pool
1,100,000 €
Keep default settings X
Use of cookies
This site uses cookies. Our (own) cookies and those of our Partners (third party cookies) are used to offer you a unique experience with us. For this reason, together with our partners, we collect and process non-sensitive information (such as the identifier of your device or the pages you visit).
At any time you can delete, modify or verify the information you share in
Cookie preference
or in our
Cookie Policy
and
Privacy Policy
.
Necessary
Functional
Profiling
Analytics
Accept all
Decline all
Accept selected
Cookie preference