Toggle navigation
(+356) 2164 9500
(+356) 9998 6779
info@sensaramalta.com
Head Office - Sensara Malta
Triq Santa Marija, Safi
09.00 to 19.00 hrs
Monday to Saturday
Home
Properties
Sales
Rentals
Foreign
About us
Services
Contacts
Send your request
Previous
Next
410,000 €
CLICK HERE for DETAILED PHOTOS
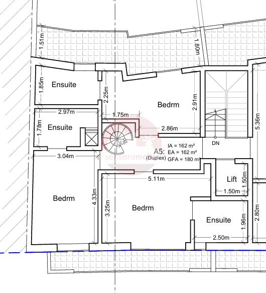
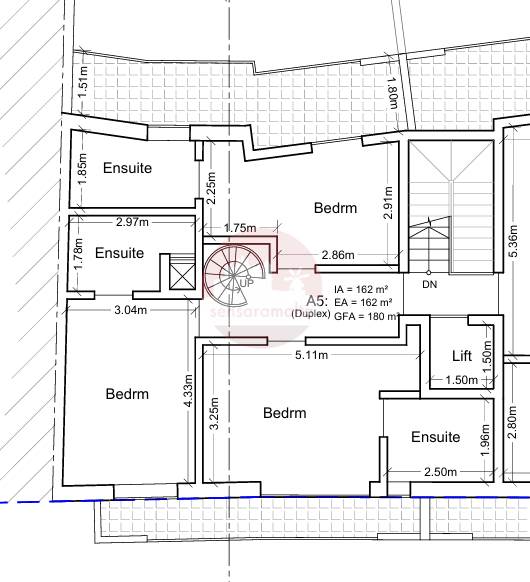
Qormi - 3 Bedroom Duplex Penthouse with circa 162sqm Outdoor Area
Duplex for sale • Qormi
On Plan - A Duplex Penthouse with Airspace, enjoying circa 162sqm Outdoor Area ideal for entertaining. To be sold Finished excluding Bathrooms and internal doors. Estimated to be completed by October 2026.
The Third Floor Level consists of Three Bedrooms all served with a private en-suite, this level provides also a front balcony and a back terrace.
A spiral staircase leads to the upper level, which opens into a bright and airy open-plan kitchen, living, and dining area. This space is seamlessly connected to a large surrounding terrace, perfect for entertaining.
Garage is also available for an additional cost. Freehold
Rooms and Features
Code
V023347
Locality
Qormi
Property type
Duplex
Price
410,000 €
Locals
1
Bedrooms
3
Bathrooms
4
Sqm
180
Balconies
1
Terraces
2
Energetic class
Nondescript
Photos • Floorplans • Video
Photos
Options
Print Property sheet
Send property sheet by mail
Schedule a visit
RealEstate Brokers
Jenkins Rita
+356 7712 7772
+356 9998 6779
+356 9998 6775
rita@sensaramalta.com
Information request
Name *
Phone *
E-mail *
Request Details *
I authorize the processing of my personal data according Regolamento UE n. 679/2016 -
Privacy Policy
I authorize the processing of data for marketing purposes, promotional activities, commercial offers and market surveys.
Send
Share on
We also recommend
for Sale
Fgura - Duplex 2 Bedroom Apartment Finished
240,000 €
for Sale
Marsascala - Duplex 1 Bedroom Furnished Apartment
232,500 €
for Sale
Ta' Xbiex, Duplex 5th & 6th Floor 3 Bedroom * Finished Penthouse with Terrace + Roof
580,000 €
Keep default settings X
Use of cookies
This site uses cookies. Our (own) cookies and those of our Partners (third party cookies) are used to offer you a unique experience with us. For this reason, together with our partners, we collect and process non-sensitive information (such as the identifier of your device or the pages you visit).
At any time you can delete, modify or verify the information you share in
Cookie preference
or in our
Cookie Policy
and
Privacy Policy
.
Necessary
Functional
Profiling
Analytics
Accept all
Decline all
Accept selected
Cookie preference