Toggle navigation
(+356) 2164 9500
(+356) 9998 6779
info@sensaramalta.com
Head Office - Sensara Malta
Triq Santa Marija, Safi
09.00 to 19.00 hrs
Monday to Saturday
Home
Properties
Sales
Rentals
Foreign
About us
Services
Contacts
Send your request
Previous
Next
1,003,500 €
CLICK HERE for DETAILED PHOTOS
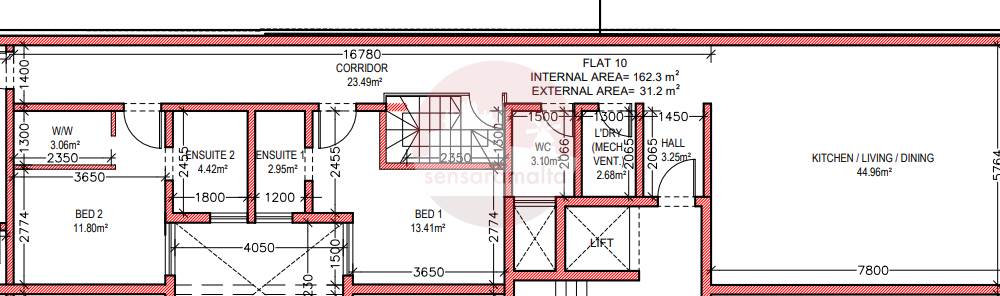
Mosta - 3 Bedroom Finished Penthouse On Plan
Penthouse for sale • Mosta
Located in Mosta, three-bedroom larger than usual penthouse of circa 193Sqm, currently available on plan.
This penthouse forms part of a block of 10 units.
Comprises of an open plan kitchen/dining/living leading to a front terrace, a laundry room, main bathroom and three double bedrooms. All bedrooms includes an ensuite bathroom. Two of the bedrooms includes a walk-in-wardrobe.
This property is being offered finished excluding bathrooms and internal doors and is estimate to be finished by 2027.
Rooms and Features
Code
V024676
Locality
Mosta
Property type
Penthouse
Price
1,003,500 €
Locals
1
Bedrooms
3
Sqm
242
Balconies
1
Terraces
1
Floor
4
Energetic class
Nondescript
Photos • Floorplans • Video
Photos
Options
Print Property sheet
Send property sheet by mail
Schedule a visit
RealEstate Brokers
Kitney Claudia
+356 9940 4319
+356 9998 6779
+356 9998 6775
claudia@sensaramalta.com
Information request
Name *
Phone *
E-mail *
Request Details *
I authorize the processing of my personal data according Regolamento UE n. 679/2016 -
Privacy Policy
I authorize the processing of data for marketing purposes, promotional activities, commercial offers and market surveys.
Send
Share on
We also recommend
for Sale
Zurrieq - 3 Bedroom Finished Penthouse, block under construction
480,000 €
for Sale
Dingli - 3 Bedroom Penthouse + Pool - Shell Form
452,000 €
for Sale
Mosta - 2 Bedroom Finished Penthouse
400,000 €
Keep default settings X
Use of cookies
This site uses cookies. Our (own) cookies and those of our Partners (third party cookies) are used to offer you a unique experience with us. For this reason, together with our partners, we collect and process non-sensitive information (such as the identifier of your device or the pages you visit).
At any time you can delete, modify or verify the information you share in
Cookie preference
or in our
Cookie Policy
and
Privacy Policy
.
Necessary
Functional
Profiling
Analytics
Accept all
Decline all
Accept selected
Cookie preference