Toggle navigation
(+356) 2164 9500
(+356) 9998 6779
info@sensaramalta.com
Head Office - Sensara Malta
Triq Santa Marija, Safi
09.00 to 19.00 hrs
Monday to Saturday
Home
Properties
Sales
Rentals
Foreign
About us
Services
Contacts
Send your request
Previous
Next
486,500 €
CLICK HERE for DETAILED PHOTOS
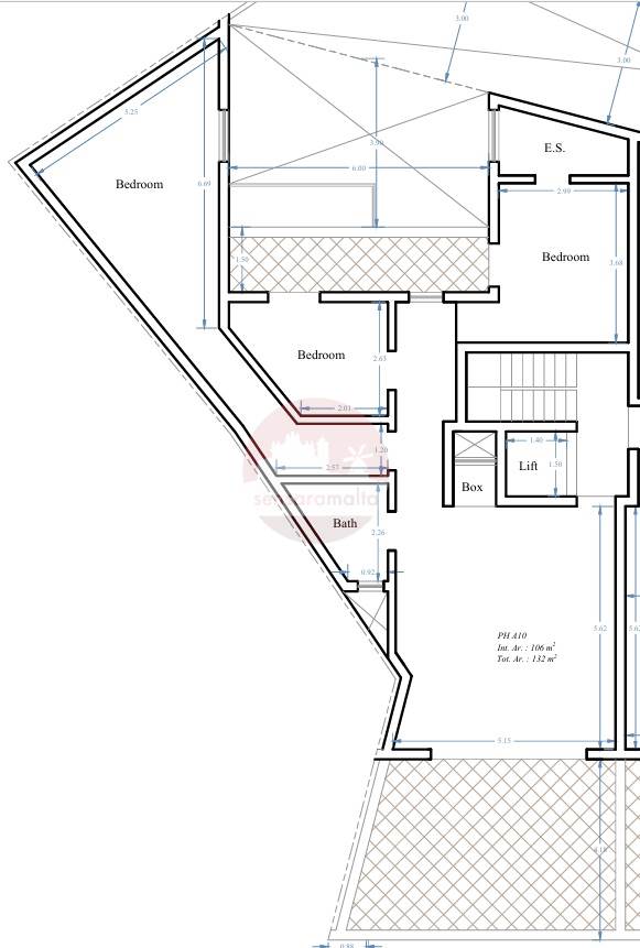
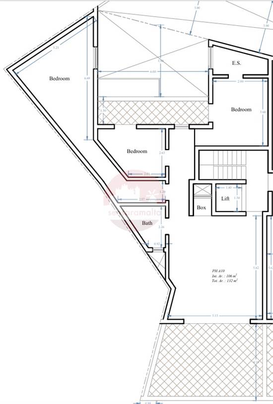
Birzebbuga - 3 Bedroom Finished Penthouse On Plan
Penthouse for sale • Birzebbuga
Situated in Birzebbuga, thee-bedroom finished penthouse, currently available on plan.
The layout comprises of an open plan kitchen/dining/living with a front terrace, a box room, main bathroom and three double bedrooms. The master bedroom includes an ensuite bathroom and is connected to a balcony.
This property is being offered finished excluding bathrooms and internal doors and is estimate to be completed by 2027. Optional garages are available at an extra price starting from 62k.
Rooms and Features
Code
V024654
Locality
Birzebbuga
Property type
Penthouse
Price
486,500 €
Locals
1
Bedrooms
3
Bathrooms
2
Sqm
140
Balconies
1
Terraces
1
Floor
4
Energetic class
Nondescript
Photos • Floorplans • Video
Photos
Options
Print Property sheet
Send property sheet by mail
Schedule a visit
RealEstate Brokers
Zahra Gaynor
+356 7933 5643
+356 9998 6775
+356 9998 6779
gaynor@sensaramalta.com
Information request
Name *
Phone *
E-mail *
Request Details *
I authorize the processing of my personal data according Regolamento UE n. 679/2016 -
Privacy Policy
I authorize the processing of data for marketing purposes, promotional activities, commercial offers and market surveys.
Send
Share on
We also recommend
for Sale
Qormi - Pent house
358,500 €
for Sale
Mellieha (Ghadira) - 380sqm 3 Bedroom Penthouse + Panaromic Sea Views
1,397,000 €
for Sale
Fgura - 2 Bedroom Penthouse + Airspace - On Plan
308,000 €
Keep default settings X
Use of cookies
This site uses cookies. Our (own) cookies and those of our Partners (third party cookies) are used to offer you a unique experience with us. For this reason, together with our partners, we collect and process non-sensitive information (such as the identifier of your device or the pages you visit).
At any time you can delete, modify or verify the information you share in
Cookie preference
or in our
Cookie Policy
and
Privacy Policy
.
Necessary
Functional
Profiling
Analytics
Accept all
Decline all
Accept selected
Cookie preference