Toggle navigation
(+356) 2164 9500
(+356) 9998 6779
info@sensaramalta.com
Head Office - Sensara Malta
Triq Santa Marija, Safi
09.00 to 19.00 hrs
Monday to Saturday
Home
Properties
Sales
Rentals
Foreign
About us
Services
Contacts
Send your request
Previous
Next
410,000 €
CLICK HERE for DETAILED PHOTOS
Zejtun - 4 Bedroom Unconverted House Of Character + Pool
House of Character for sale • Zejtun
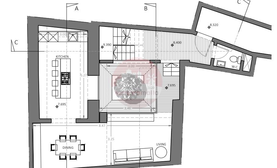
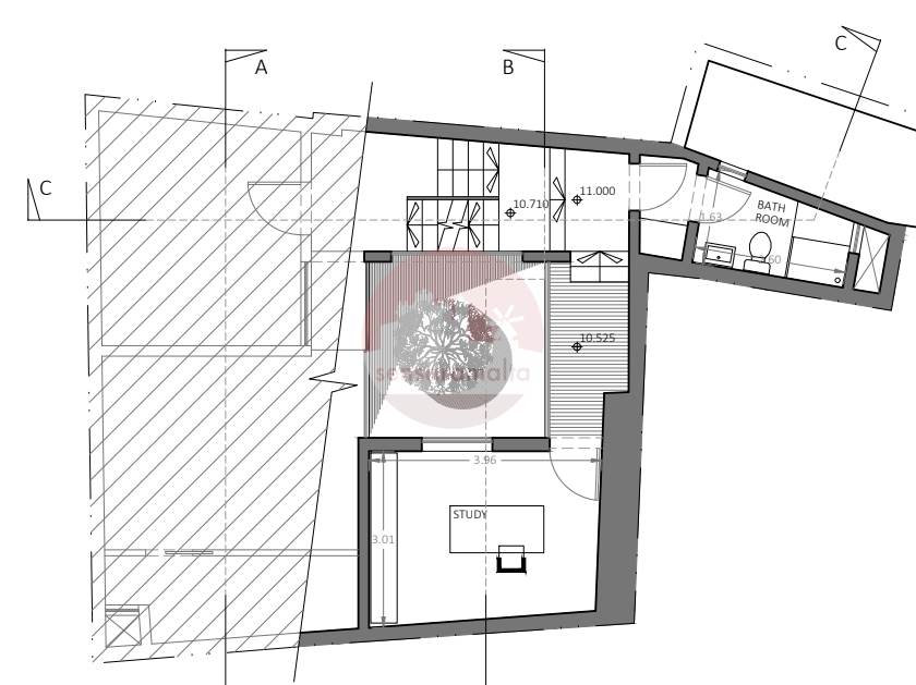
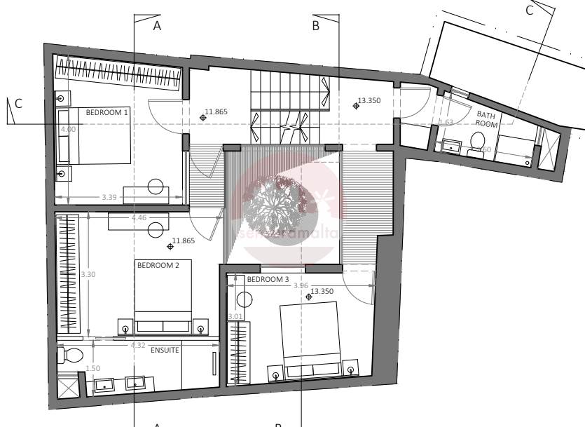
Located in Zejtun, to be converted in a four-bedroom House of character, now available on the market.
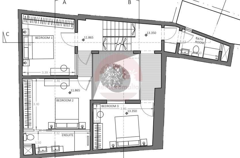
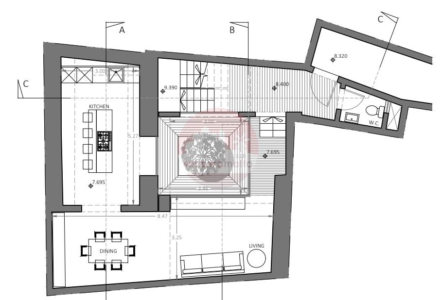
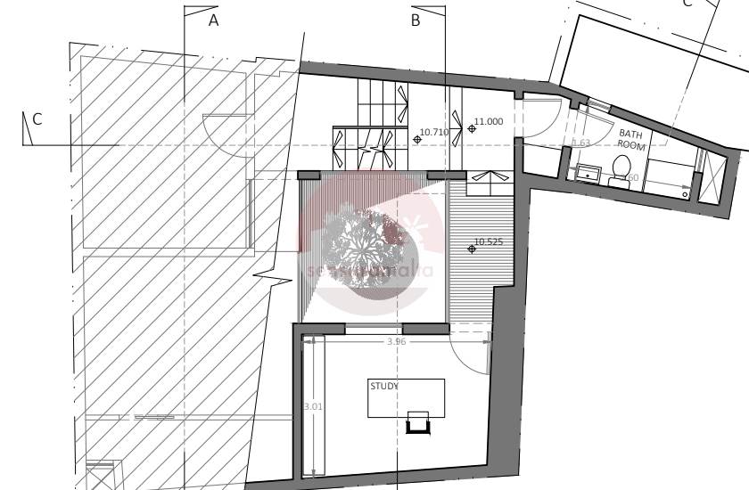
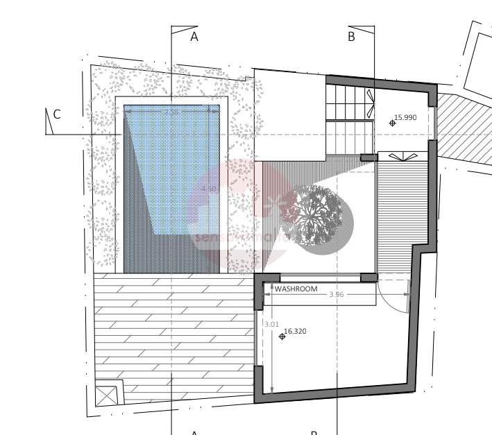
This property consists of an open plan kitchen/dining/living at the ground floor level, main bathroom and four bedrooms (3 double bedrooms and a spare). This penthouse benefits from exclusive use of its own roof and airspace with space for a private pool.
The property is being offered unconverted, but once finished, it will make a lovely home.
Rooms and Features
Code
V024608
Locality
Zejtun
Property type
House of Character
Price
410,000 €
Locals
1
Bedrooms
4
Bathrooms
2
Sqm
150
Energetic class
Not applicable
Property Conditions
To Be Renovated
Photos • Floorplans • Video
Photos
Options
Print Property sheet
Send property sheet by mail
Schedule a visit
RealEstate Brokers
Azzopardi Janice
+356 9998 6775
+356 9998 6779
+356 2164 9500
janice@sensaramalta.com
Information request
Name *
Phone *
E-mail *
Request Details *
I authorize the processing of my personal data according Regolamento UE n. 679/2016 -
Privacy Policy
I authorize the processing of data for marketing purposes, promotional activities, commercial offers and market surveys.
Send
Share on
We also recommend
for Sale
Zejtun - Fully Converted Townhouse in UCA - Semi-Furnished
650,000 €
for Sale
Xewkija Gozo - 4 Bedroom Farmhouse + Pool + Garden
380,000 €
for Sale
Lija - 3 Bedroom H.O.C + Pool + 5 Car Garage On Plan
1,556,000 €
Keep default settings X
Use of cookies
This site uses cookies. Our (own) cookies and those of our Partners (third party cookies) are used to offer you a unique experience with us. For this reason, together with our partners, we collect and process non-sensitive information (such as the identifier of your device or the pages you visit).
At any time you can delete, modify or verify the information you share in
Cookie preference
or in our
Cookie Policy
and
Privacy Policy
.
Necessary
Functional
Profiling
Analytics
Accept all
Decline all
Accept selected
Cookie preference