Toggle navigation
(+356) 2164 9500
(+356) 9998 6779
info@sensaramalta.com
Head Office - Sensara Malta
Triq Santa Marija, Safi
09.00 to 19.00 hrs
Monday to Saturday
Home
Properties
Sales
Rentals
Foreign
About us
Services
Contacts
Send your request
Previous
Next
589,000 €
CLICK HERE for DETAILED PHOTOS
Zejtun - 3 bedrooms Townhouse in Uca area Shell form + Garage (On Plan)
Town House for sale • Zejtun
Newly built 3 bedrooms townhouse located in Uca Area in a total area of 241 sqms, being sold on plan in shell form.
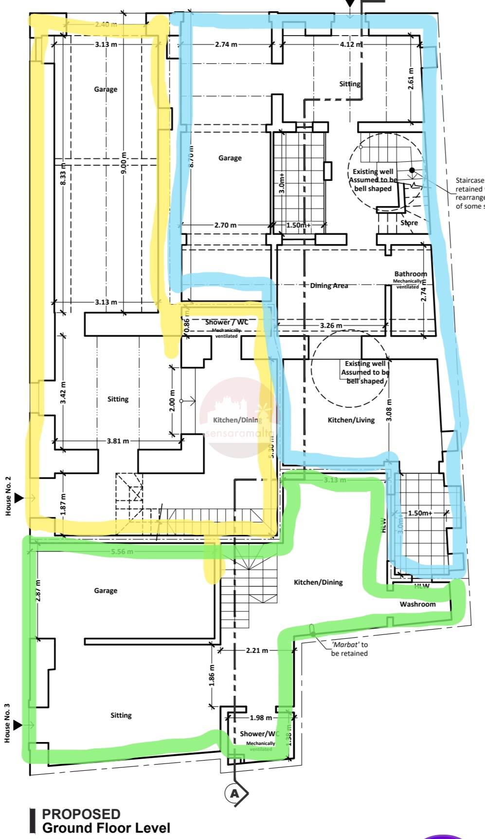
Ground floor consists of K/LD area, washroom, street level garage and and guest bathroom.
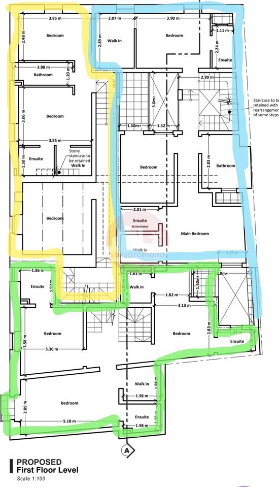
First floor features 3 bedrooms, including en-suite and walk-in wardrobe.
Roof level includes a washroom and a private pool.
Estimated to be completed by end of 2026.
Freehold
Rooms and Features
Code
V023954
Locality
Zejtun
Property type
Town House
Price
589,000 €
Locals
1
Bedrooms
3
Bathrooms
4
Sqm
75
Terraces
1
Energetic class
Nondescript
Property Conditions
New
Photos • Floorplans • Video
Photos
Options
Print Property sheet
Send property sheet by mail
Schedule a visit
RealEstate Brokers
Grima Keith
+356 7902 0587
+356 9998 6775
+356 9998 6779
keith@sensaramalta.com
Information request
Name *
Phone *
E-mail *
Request Details *
I authorize the processing of my personal data according Regolamento UE n. 679/2016 -
Privacy Policy
I authorize the processing of data for marketing purposes, promotional activities, commercial offers and market surveys.
Send
Share on
We also recommend
for Sale
Naxxar - 2 Bedroom Townhouse
440,000 €
for Sale
Paola- 4 Bedroom Habitable Townhouse+ Garden + Garage
850,000 €
for Sale
Zebbug - Imposing Town House in Main Square
1,228,000 €
Keep default settings X
Use of cookies
This site uses cookies. Our (own) cookies and those of our Partners (third party cookies) are used to offer you a unique experience with us. For this reason, together with our partners, we collect and process non-sensitive information (such as the identifier of your device or the pages you visit).
At any time you can delete, modify or verify the information you share in
Cookie preference
or in our
Cookie Policy
and
Privacy Policy
.
Necessary
Functional
Profiling
Analytics
Accept all
Decline all
Accept selected
Cookie preference