Toggle navigation
(+356) 2164 9500
(+356) 9998 6779
info@sensaramalta.com
Head Office - Sensara Malta
Triq Santa Marija, Safi
09.00 to 19.00 hrs
Monday to Saturday
Home
Properties
Sales
Rentals
Foreign
About us
Services
Contacts
Send your request
Previous
Next
525,000 €
CLICK HERE for DETAILED PHOTOS
Zurrieq - Large 3 bedroom Terraced House in UCA area
Terraced house for sale • Zurrieq
In the sought village of Zurrieq, comes this beautiful Terraced house enjoying a 14sqm underground resevoir beneath a street level garage .
At groundfloor level, it comprises a welcoming entrance leading to the main bedroom with walk-in, ensuite and internal yard. A staircase on the right of the entrance, takes you up to the first floor which comprises of a Spacious kitchen and dining with balcony on one side, and on the other, the living room
and the bathroom.
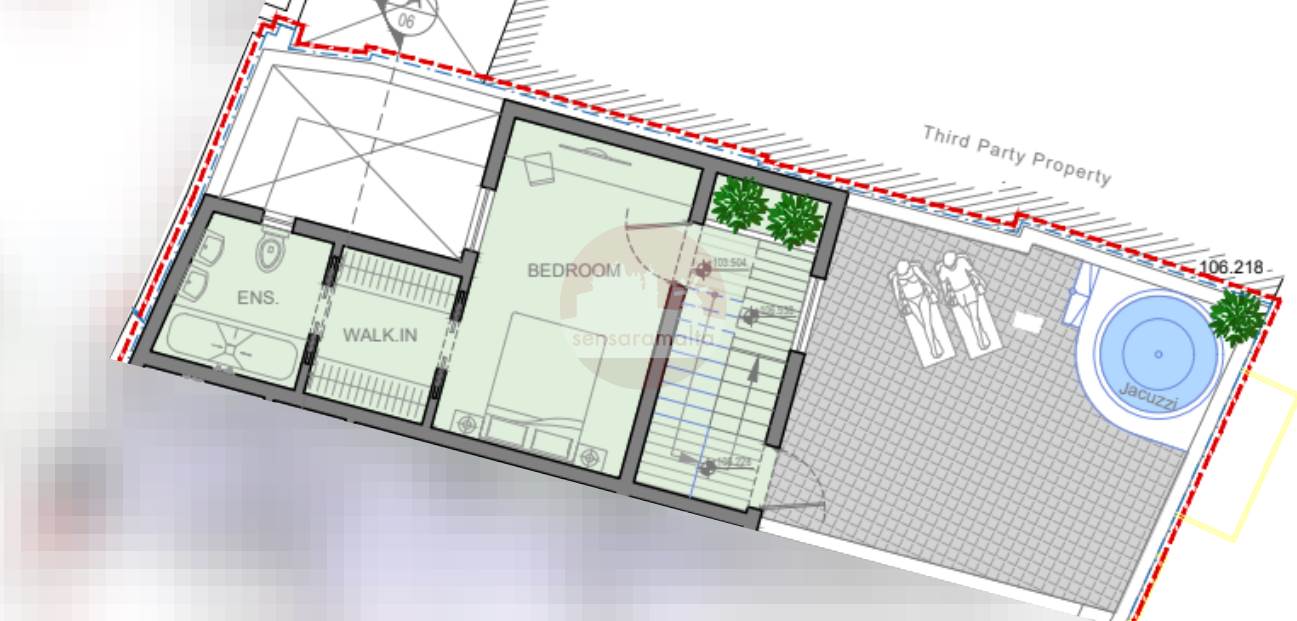
On the intermediate floor, this house comprises of another bedroom with both an ensuite and a walk-in, as well as a terrace. On the second floor lies the third bedroom with another walk-in and another ensuite.
This property is being sold in SHELL form.
Well worth your time and money, this house is one of a kind!
Freehold
Rooms and Features
Code
V023828
Locality
Zurrieq
Property type
Terraced house
Price
525,000 €
Locals
1
Bedrooms
3
Bathrooms
4
Sqm
217
Balconies
1
Terraces
1
Energetic class
Not applicable
Photos • Floorplans • Video
Photos
Options
Print Property sheet
Send property sheet by mail
Schedule a visit
RealEstate Brokers
Aguis Lorna
+356 9961 6121
+356 9998 6779
+356 2164 9500
lorna@sensaramalta.com
Information request
Name *
Phone *
E-mail *
Request Details *
I authorize the processing of my personal data according Regolamento UE n. 679/2016 -
Privacy Policy
I authorize the processing of data for marketing purposes, promotional activities, commercial offers and market surveys.
Send
Share on
We also recommend
for Sale
Mosta - Fully Furnished 4 Bedroom Terraced House + Pool
1,178,000 €
for Sale
Rabat - Semi Detached T/House + Shell Form
720,000 €
for Sale
Nadur - Newly Built House With Pool And Garage
880,000 €
Keep default settings X
Use of cookies
This site uses cookies. Our (own) cookies and those of our Partners (third party cookies) are used to offer you a unique experience with us. For this reason, together with our partners, we collect and process non-sensitive information (such as the identifier of your device or the pages you visit).
At any time you can delete, modify or verify the information you share in
Cookie preference
or in our
Cookie Policy
and
Privacy Policy
.
Necessary
Functional
Profiling
Analytics
Accept all
Decline all
Accept selected
Cookie preference