Toggle navigation
(+356) 2164 9500
(+356) 9998 6779
info@sensaramalta.com
Head Office - Sensara Malta
Triq Santa Marija, Safi
09.00 to 19.00 hrs
Monday to Saturday
Home
Properties
Sales
Rentals
Foreign
About us
Services
Contacts
Send your request
Previous
Next
1,205,000 €
CLICK HERE for DETAILED PHOTOS
San Giljan Balluta, Circa 675sqm , 5th floor, 3 Bedroom Penthouse + Permits + 2 Garages Included
Penthouse for sale • San Giljan
Located within the sought-after Balluta area of St Julian’s, this property forms part of a well-maintained residential block. The property is being offered finished , with scope for upgrades to further enhance its appeal.
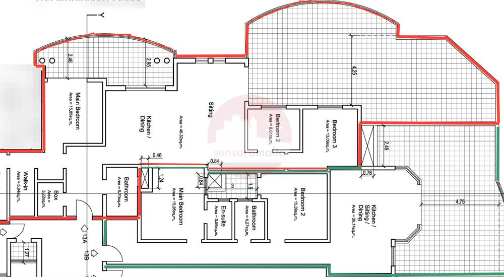
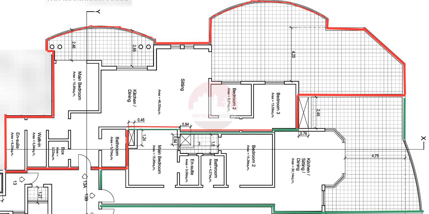
The property currently comprises a single, expansive unit with a total area of approximately 674 sqm on the 5th floor.
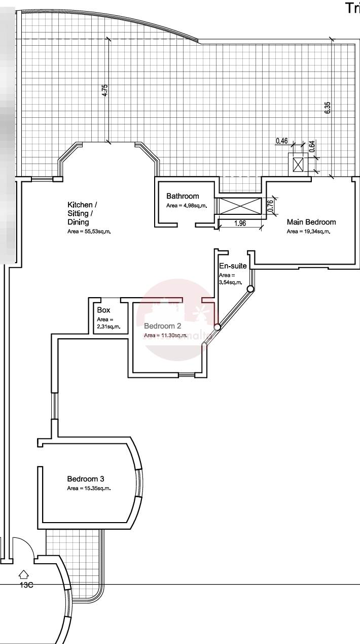
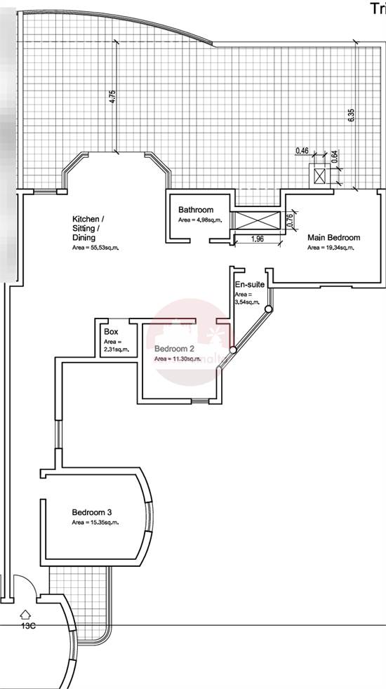
Approved planning permits are in place to redevelop the property into three separate penthouse units.
The first penthouse is planned to offer approximately 235 sqm of combined internal and external space, the second penthouse approximately 163 sqm, while the third penthouse is designed to span approximately 257 sqm. Each unit benefits from generous layouts and private outdoor areas, making them well-suited for high-end residential use or as an investment opportunity.
The property has also full ownership of roof and airspace and it is being offered freehold .
Two large one-car lock-up garages are included in the price.
Rooms and Features
Code
V023746
Locality
San Giljan
Property type
Penthouse
Price
1,205,000 €
Locals
1
Bedrooms
3
Bathrooms
3
Sqm
675
Garages
2
Car places
2
Balconies
2
Terraces
2
sqm Terrace
460
Floor
5
Energetic class
Not applicable
Property Conditions
Habitable
Accessories:
Veranda
Photos • Floorplans • Video
Photos
Options
Print Property sheet
Send property sheet by mail
Schedule a visit
RealEstate Brokers
Schembri Maria Pawla
+356 7732 8183
+356 9998 6779
+356 9998 6775
pawla@sensaramalta.com
Information request
Name *
Phone *
E-mail *
Request Details *
I authorize the processing of my personal data according Regolamento UE n. 679/2016 -
Privacy Policy
I authorize the processing of data for marketing purposes, promotional activities, commercial offers and market surveys.
Send
Share on
We also recommend
for Sale
San Pawl il-Bahar - 3 Bedroom Penthouse + Views
410,000 €
for Sale
Birkirkara - 3 Bedroom Furnished Penthouse + Roof + Opt Garage
512,000 €
for Sale
Safi - 2 Bedroom Finished Penthouse
430,000 €
Keep default settings X
Use of cookies
This site uses cookies. Our (own) cookies and those of our Partners (third party cookies) are used to offer you a unique experience with us. For this reason, together with our partners, we collect and process non-sensitive information (such as the identifier of your device or the pages you visit).
At any time you can delete, modify or verify the information you share in
Cookie preference
or in our
Cookie Policy
and
Privacy Policy
.
Necessary
Functional
Profiling
Analytics
Accept all
Decline all
Accept selected
Cookie preference