Toggle navigation
(+356) 2164 9500
(+356) 9998 6779
info@sensaramalta.com
Head Office - Sensara Malta
Triq Santa Marija, Safi
09.00 to 19.00 hrs
Monday to Saturday
Home
Properties
Sales
Rentals
Foreign
About us
Services
Contacts
Send your request
Previous
Next
440,500 €
CLICK HERE for DETAILED PHOTOS
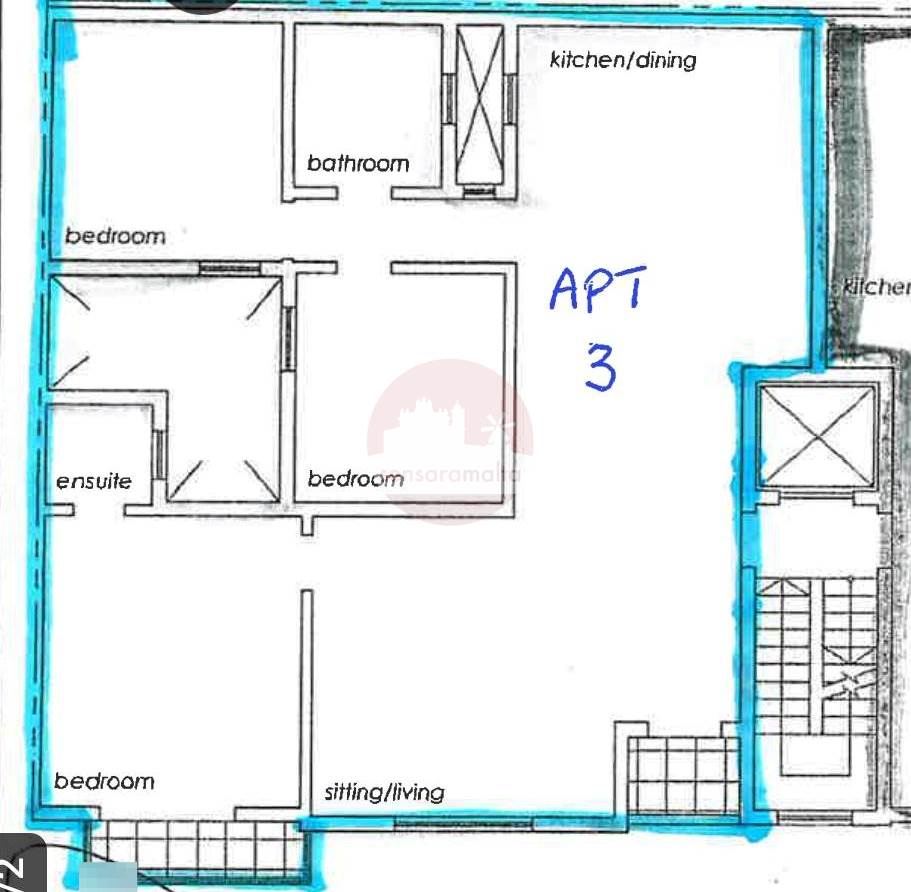
San Gwann - 3 Bedroom Apartment + Optional Garage
3+ bedroom apartment for sale • San Gwann
Within San Gwann in a quiet residential area yet close to all amenities, this well-kept 2nd-floor spacious 3-bedroom apartment offers both comfort and convenience. Served with a lift and offered partly furnished, the property includes a fitted kitchen with appliances, air conditioners, and much more. Freehold
Upon entering, one finds a bright and airy open-plan kitchen, dining, and living area leading to a front balcony. The apartment also comprises a main bedroom with an ensuite and private balcony, a double bedroom, a single bedroom, and a main bathroom with washing machine connections.
Optional Garage:
At level -1, there is an interconnected one-car garage with extra storage, available at €50,000.
Rooms and Features
Code
V023584
Locality
San Gwann
Property type
3+ bedroom apartment
Price
440,500 €
Locals
1
Bedrooms
3
Bathrooms
2
Sqm
150
Car places
1
Balconies
2
Floor
2
Energetic class
Nondescript
Property Conditions
Habitable
Accessories:
Air Conditioning, Double Glazing
Photos • Floorplans • Video
Photos
Options
Print Property sheet
Send property sheet by mail
Schedule a visit
RealEstate Brokers
Hughes Jeffrey
+356 9980 0004
+356 9998 6779
+356 9998 6775
hughes@sensaramalta.com
Information request
Name *
Phone *
E-mail *
Request Details *
I authorize the processing of my personal data according Regolamento UE n. 679/2016 -
Privacy Policy
I authorize the processing of data for marketing purposes, promotional activities, commercial offers and market surveys.
Send
Share on
We also recommend
for Sale
Zejtun - 3 Bedroom Apartment Finished
360,000 €
for Sale
Ghajnsielem Gozo - 3 Bedroom Finished Apartment + Views
310,000 €
for Sale
Zabbar - 3 Bedroom Fully Finished Corner Apartment
308,000 €
Keep default settings X
Use of cookies
This site uses cookies. Our (own) cookies and those of our Partners (third party cookies) are used to offer you a unique experience with us. For this reason, together with our partners, we collect and process non-sensitive information (such as the identifier of your device or the pages you visit).
At any time you can delete, modify or verify the information you share in
Cookie preference
or in our
Cookie Policy
and
Privacy Policy
.
Necessary
Functional
Profiling
Analytics
Accept all
Decline all
Accept selected
Cookie preference