Toggle navigation
(+356) 2164 9500
(+356) 9998 6779
info@sensaramalta.com
Head Office - Sensara Malta
Triq Santa Marija, Safi
09.00 to 19.00 hrs
Monday to Saturday
Home
Properties
Sales
Rentals
Foreign
About us
Services
Contacts
Send your request
Previous
Next
308,000 €
CLICK HERE for DETAILED PHOTOS
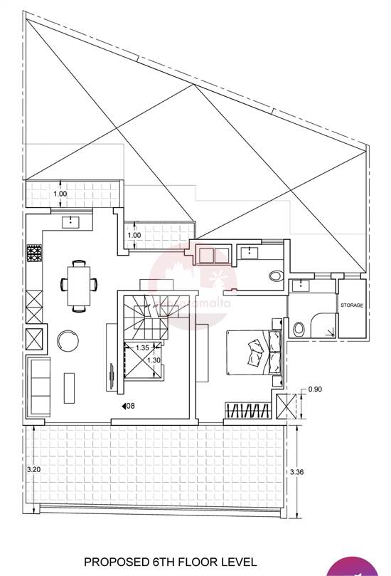
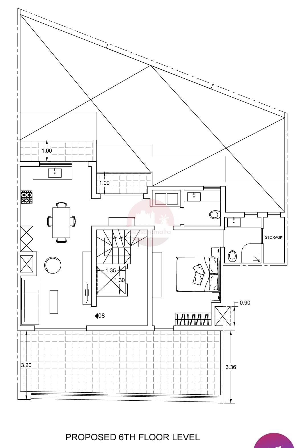
Marsascala - 6th floor 1 Bedroom Penthouse Finished - On Plan
Penthouse for sale • Marsascala
A brand-new residential block in a quiet yet central area of Marsascala, featuring a total of 8 units served with a new lift and modern common parts.
Each apartment enjoys a bright and spacious front open-plan layout complemented by comfortable outdoor spaces.
The construction is scheduled to start by the end of 2025.
Topping off the block is this charming penthouse, offering a blend of comfort, privacy, and outdoor space.
The layout includes a long open-plan kitchen, living, and dining area leading onto a front terrace, ideal for entertaining or simply enjoying the open views. The double bedroom comes with its own ensuite bathroom, and there’s also a main bathroom for guests.
The property has a back balcony and another separate balcony, giving you multiple outdoor spots to enjoy. Best of all, the penthouse comes with full roof and airspace ownership and is being sold freehold—making it a great opportunity for anyone looking to invest or settle in Marsascala.
Freehold.
Rooms and Features
Code
V023569
Locality
Marsascala
Property type
Penthouse
Price
308,000 €
Locals
1
Bedrooms
1
Bathrooms
1
Sqm
67
Balconies
2
Terraces
1
sqm Terrace
37
Floor
6
Energetic class
Not applicable
Property Conditions
Under Construction
Photos • Floorplans • Video
Photos
Options
Print Property sheet
Send property sheet by mail
Schedule a visit
RealEstate Brokers
Schembri Maria Pawla
+356 7732 8183
+356 9998 6779
+356 9998 6775
pawla@sensaramalta.com
Information request
Name *
Phone *
E-mail *
Request Details *
I authorize the processing of my personal data according Regolamento UE n. 679/2016 -
Privacy Policy
I authorize the processing of data for marketing purposes, promotional activities, commercial offers and market surveys.
Send
Share on
We also recommend
for Sale
Pieta Under Construction Top floor 1 Bedroom Penthouse Fully finished
290,000 €
for Sale
Fgura - Squarish 2 Bedroom Penthouse - On Plan
359,000 €
for Sale
Siggiewi - Luxury 3 Bedroom Penthouse With Pool
1,200,000 €
Keep default settings X
Use of cookies
This site uses cookies. Our (own) cookies and those of our Partners (third party cookies) are used to offer you a unique experience with us. For this reason, together with our partners, we collect and process non-sensitive information (such as the identifier of your device or the pages you visit).
At any time you can delete, modify or verify the information you share in
Cookie preference
or in our
Cookie Policy
and
Privacy Policy
.
Necessary
Functional
Profiling
Analytics
Accept all
Decline all
Accept selected
Cookie preference