Toggle navigation
(+356) 2164 9500
(+356) 9998 6779
info@sensaramalta.com
Head Office - Sensara Malta
Triq Santa Marija, Safi
09.00 to 19.00 hrs
Monday to Saturday
Home
Properties
Sales
Rentals
Foreign
About us
Services
Contacts
Send your request
Previous
Next
305,000 €
CLICK HERE for DETAILED PHOTOS
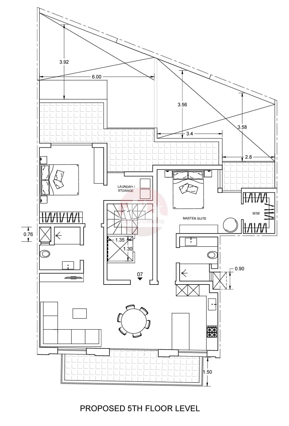
Marsascala 5th floor 2 Bedroom Apartment Finished - On Plan
2 bedroom apartment for sale • Marsascala
A brand-new residential block in a quiet yet central area of Marsascala, featuring a total of 8 units served with a new lift and modern common parts.
Each apartment enjoys a bright and spacious front open-plan layout complemented by comfortable outdoor spaces.
The construction is scheduled to start by the end of 2025.
This fifth-floor apartment features two double bedrooms and two bathrooms (one ensuite), along with a bright open-plan kitchen, living, and dining area that opens onto a front terrace.
The second bedroom also enjoys access to a back balcony and terrace, giving both sides of the apartment a pleasant flow of natural light. It’s a fantastic option for couples, small families, or as a rental investment in a sought-after area of Marsascala.
Freehold
Rooms and Features
Code
V023568
Locality
Marsascala
Property type
2 bedroom apartment
Price
305,000 €
Locals
1
Bedrooms
2
Bathrooms
2
Sqm
94
Balconies
1
Terraces
2
sqm Terrace
28
Floor
5
Energetic class
Not applicable
Property Conditions
Under Construction
Photos • Floorplans • Video
Photos
Options
Print Property sheet
Send property sheet by mail
Schedule a visit
RealEstate Brokers
Schembri Maria Pawla
+356 7732 8183
+356 9998 6779
+356 9998 6775
pawla@sensaramalta.com
Information request
Name *
Phone *
E-mail *
Request Details *
I authorize the processing of my personal data according Regolamento UE n. 679/2016 -
Privacy Policy
I authorize the processing of data for marketing purposes, promotional activities, commercial offers and market surveys.
Send
Share on
We also recommend
for Sale
Hamrun - 1 Bedroom + Study On Plan Shell Form
182,000 €
for Sale
Sannat - Apartment with pool
353,000 €
for Sale
Rabat - 2 Bedroom Finished Luxurious Apartment + Pool + Terrace + Views
820,000 €
Keep default settings X
Use of cookies
This site uses cookies. Our (own) cookies and those of our Partners (third party cookies) are used to offer you a unique experience with us. For this reason, together with our partners, we collect and process non-sensitive information (such as the identifier of your device or the pages you visit).
At any time you can delete, modify or verify the information you share in
Cookie preference
or in our
Cookie Policy
and
Privacy Policy
.
Necessary
Functional
Profiling
Analytics
Accept all
Decline all
Accept selected
Cookie preference