Toggle navigation
(+356) 2164 9500
(+356) 9998 6779
info@sensaramalta.com
Head Office - Sensara Malta
Triq Santa Marija, Safi
09.00 to 19.00 hrs
Monday to Saturday
Home
Properties
Sales
Rentals
Foreign
About us
Services
Contacts
Send your request
Previous
Next
379,000 €
CLICK HERE for DETAILED PHOTOS
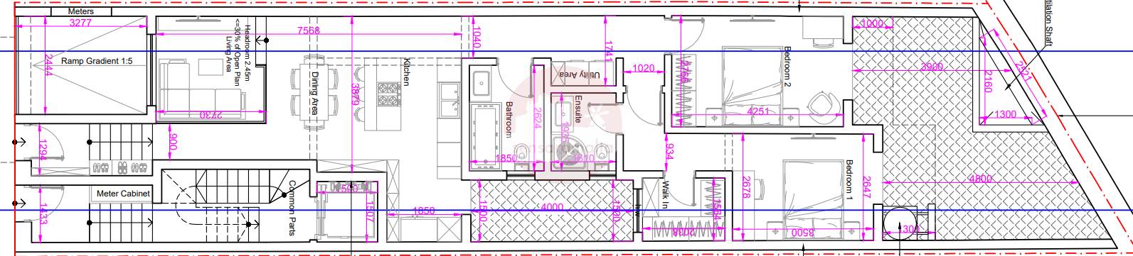
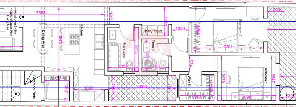
Ghaxaq - 2 Bedroom Finished Elevated Maisonette On Plan
Maisonette for sale • Ghaxaq
Located in a quiet are of Ghaxaq, two-bedroom elevated maisonette, currently available on plan.
Consists of it's own private door for added privacy, upon entering open plan kitchen/dining/living, main bathroom, laundry room, internal yard and two double bedrooms both of them connected to the backyard. Master bedroom includes an ensuite bathroom and a walk-in-wardrobe.
This property is being offered finished excluding bathrooms and doors and is estimate to be completed by 2027.
Optional garages are available starting from 57k.
Rooms and Features
Code
V023551
Locality
Ghaxaq
Property type
Maisonette
Price
379,000 €
Locals
1
Bedrooms
2
Bathrooms
2
Sqm
128
Terraces
1
Floor
Ground floor
Energetic class
Nondescript
Photos • Floorplans • Video
Photos
Options
Print Property sheet
Send property sheet by mail
Schedule a visit
RealEstate Brokers
Briffa Stephania
+356 7747 9456
+356 9998 6779
+356 9998 6775
stephania@sensaramalta.com
Information request
Name *
Phone *
E-mail *
Request Details *
I authorize the processing of my personal data according Regolamento UE n. 679/2016 -
Privacy Policy
I authorize the processing of data for marketing purposes, promotional activities, commercial offers and market surveys.
Send
Share on
We also recommend
for Sale
Msida - 2 Bedroom Finished Ground Floor Maisonette On Plan
246,000 €
for Sale
Bugibba - 2 Bedroom Ground Floor Older Type Maisonette + Views
461,000 €
for Sale
Birkirkara - 3 Bedroom Furnished Maisonette + Optional Garage
512,000 €
Keep default settings X
Use of cookies
This site uses cookies. Our (own) cookies and those of our Partners (third party cookies) are used to offer you a unique experience with us. For this reason, together with our partners, we collect and process non-sensitive information (such as the identifier of your device or the pages you visit).
At any time you can delete, modify or verify the information you share in
Cookie preference
or in our
Cookie Policy
and
Privacy Policy
.
Necessary
Functional
Profiling
Analytics
Accept all
Decline all
Accept selected
Cookie preference