Toggle navigation
(+356) 2164 9500
(+356) 9998 6779
info@sensaramalta.com
Head Office - Sensara Malta
Triq Santa Marija, Safi
09.00 to 19.00 hrs
Monday to Saturday
Home
Properties
Sales
Rentals
Foreign
About us
Services
Contacts
Send your request
Previous
Next
179,000 €
CLICK HERE for DETAILED PHOTOS
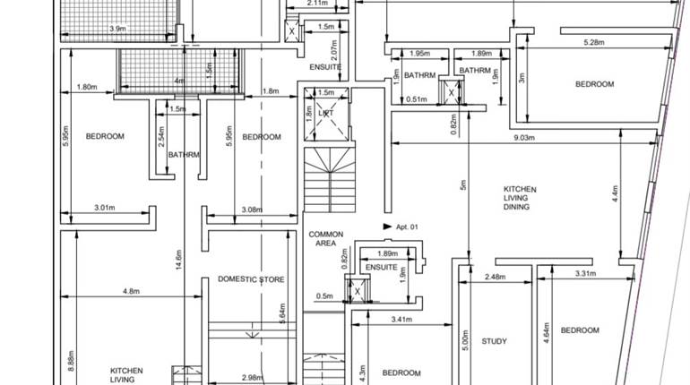
Paola - Shell Form 2 Bedroom Apartment On Plan
2 bedroom apartment for sale • Paola
A 3rd floor Apartment being sold on Plan.
The layout consist of an open-plan kitchen/ living/ Dining area followed by good size front balcony, main bedroom, main bathroom and a study room.
The property will be built by March 2027 and is offered in advanced shell form, with apertures included, giving buyers the chance to finish it to their own style and preferences.
Rooms and Features
Code
V023186
Locality
Paola
Property type
2 bedroom apartment
Price
179,000 €
Locals
1
Sqm
56
Floor
3
Energetic class
Nondescript
Photos • Floorplans • Video
Photos
Options
Print Property sheet
Send property sheet by mail
Schedule a visit
RealEstate Brokers
Briffa Stephania
+356 7747 9456
+356 9998 6779
+356 9998 6775
stephania@sensaramalta.com
Information request
Name *
Phone *
E-mail *
Request Details *
I authorize the processing of my personal data according Regolamento UE n. 679/2016 -
Privacy Policy
I authorize the processing of data for marketing purposes, promotional activities, commercial offers and market surveys.
Send
Share on
We also recommend
for Sale
Sannat Gozo - 2 Bedroom Shell Form Apt
220,000 €
for Sale
Zabbar- 2 bedroom + study ground floor apartment fully finished
270,000 €
for Sale
Sannat - 2 Bedroom Penthouse + Country View
328,000 €
Keep default settings X
Use of cookies
This site uses cookies. Our (own) cookies and those of our Partners (third party cookies) are used to offer you a unique experience with us. For this reason, together with our partners, we collect and process non-sensitive information (such as the identifier of your device or the pages you visit).
At any time you can delete, modify or verify the information you share in
Cookie preference
or in our
Cookie Policy
and
Privacy Policy
.
Necessary
Functional
Profiling
Analytics
Accept all
Decline all
Accept selected
Cookie preference