Toggle navigation
(+356) 2164 9500
(+356) 9998 6779
info@sensaramalta.com
Head Office - Sensara Malta
Triq Santa Marija, Safi
09.00 to 19.00 hrs
Monday to Saturday
Home
Properties
Sales
Rentals
Foreign
About us
Services
Contacts
Send your request
Previous
Next
276,500 €
CLICK HERE for DETAILED PHOTOS
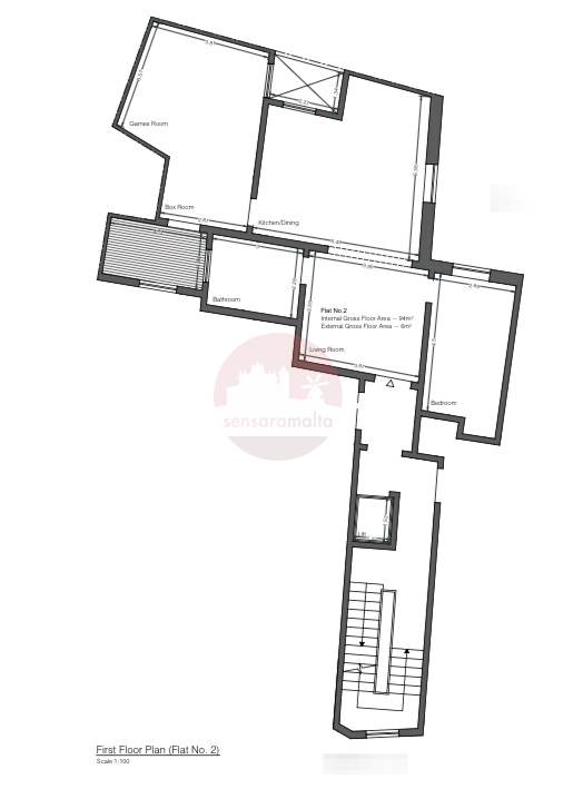
Bormla - 2 Bedroom Apartment + Lift + Views
2 bedroom apartment for sale • Bormla
In Bormla comes a two bedroom apartment being offered finished excluding bathroom and internal doors.
Upon entering one finds a kitchen/living/dining, two double bedrooms, a bathroom and an internal yard.
Freehold
Rooms and Features
Code
V023149
Locality
Bormla
Property type
2 bedroom apartment
Price
276,500 €
Locals
1
Bedrooms
2
Bathrooms
1
Sqm
100
Energetic class
Not applicable
Photos • Floorplans • Video
Photos
Options
Print Property sheet
Send property sheet by mail
Schedule a visit
RealEstate Brokers
Micallef Grimaud Emmanuel
+356 9990 6202
+356 9998 6779
+356 9998 6775
info@sensaramalta.com
Information request
Name *
Phone *
E-mail *
Request Details *
I authorize the processing of my personal data according Regolamento UE n. 679/2016 -
Privacy Policy
I authorize the processing of data for marketing purposes, promotional activities, commercial offers and market surveys.
Send
Share on
We also recommend
for Sale
Birkirkara - 2nd Floor 2 Bedroom Fully Finished Apartment - Already Built
337,000 €
for Sale
Mosta - 2 bedroom First Floor Apartment
434,000 €
for Sale
Gozo Victoria: 2/3bedrooms APARTMENTS/2bedrooms PENTHOUSES
195,000 €
Keep default settings X
Use of cookies
This site uses cookies. Our (own) cookies and those of our Partners (third party cookies) are used to offer you a unique experience with us. For this reason, together with our partners, we collect and process non-sensitive information (such as the identifier of your device or the pages you visit).
At any time you can delete, modify or verify the information you share in
Cookie preference
or in our
Cookie Policy
and
Privacy Policy
.
Necessary
Functional
Profiling
Analytics
Accept all
Decline all
Accept selected
Cookie preference