Toggle navigation
(+356) 2164 9500
(+356) 9998 6779
info@sensaramalta.com
Head Office - Sensara Malta
Triq Santa Marija, Safi
09.00 to 19.00 hrs
Monday to Saturday
Home
Properties
Sales
Rentals
Foreign
About us
Services
Contacts
Send your request
Previous
Next
461,000 €
CLICK HERE for DETAILED PHOTOS
Tarxien - Solitary 3 Bedroom Maisonette + Roof
Maisonette for sale • Tarxien
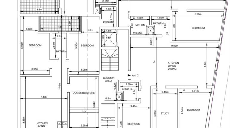
New on the market comes this solitary maisonette in a habitable state.
Entering this property on finds a good size landing and a large room on ground floor level.
A flight of stairs than leads to a kitchen/dining area, a bathroom and a massive bedroom, than a corridor leads to a large seperated living room, another bathroom and an other massive bedroom.
The upper level consist of a washroom and roof.
This property is structuallly sound but needs some modernisation and being sold with permits in hand to build another unit so one will have 2 separate units.
Freehold
Rooms and Features
Code
V023111
Locality
Tarxien
Property type
Maisonette
Price
461,000 €
Locals
1
Bedrooms
3
Bathrooms
2
Sqm
130
Energetic class
Nondescript
Photos • Floorplans • Video
Photos
Options
Print Property sheet
Send property sheet by mail
Schedule a visit
RealEstate Brokers
Grima Cleaven
+356 7926 9223
+356 9998 6779
+356 2164 9500
cleaven@sensaramalta.com
Information request
Name *
Phone *
E-mail *
Request Details *
I authorize the processing of my personal data according Regolamento UE n. 679/2016 -
Privacy Policy
I authorize the processing of data for marketing purposes, promotional activities, commercial offers and market surveys.
Send
Share on
We also recommend
for Sale
Sannat - Fully Furnished Corner Maisonette
450,000 €
for Sale
Balzan - 3 Bedroom Ground Floor Maisonette UCA Area
615,000 €
for Sale
Siggiewi - Already Built 144sqm 3 Bedroom Finished Maisonette + Yard / Optional Garage
395,000 €
Keep default settings X
Use of cookies
This site uses cookies. Our (own) cookies and those of our Partners (third party cookies) are used to offer you a unique experience with us. For this reason, together with our partners, we collect and process non-sensitive information (such as the identifier of your device or the pages you visit).
At any time you can delete, modify or verify the information you share in
Cookie preference
or in our
Cookie Policy
and
Privacy Policy
.
Necessary
Functional
Profiling
Analytics
Accept all
Decline all
Accept selected
Cookie preference