Toggle navigation
(+356) 2164 9500
(+356) 9998 6779
info@sensaramalta.com
Head Office - Sensara Malta
Triq Santa Marija, Safi
09.00 to 19.00 hrs
Monday to Saturday
Home
Properties
Sales
Rentals
Foreign
About us
Services
Contacts
Send your request
Previous
Next
236,000 €
CLICK HERE for DETAILED PHOTOS
Qormi - Under Construction 2 Bedroom Apartment - Finished
2 bedroom apartment for sale • Qormi
Qormi - Presently Block is Under construction - Project estimated to be completed apprx by July 2026. Apartments will be sold Finished excluding bathrooms and internal doors.
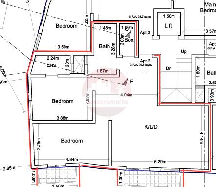
First Floor 2 Bedroom Apartment
Consisting of an open plan Kitchen/Living/Dining overlooking a balcony, Main Bathroom, Two Bedrooms main with en-suite and the spare with a balcony.
Optional Garages are also available underneath the block.
Freehold
Rooms and Features
Code
V023086
Locality
Qormi
Property type
2 bedroom apartment
Price
236,000 €
Locals
1
Bedrooms
2
Bathrooms
2
Sqm
90
Balconies
2
Energetic class
Nondescript
Photos • Floorplans • Video
Photos
Options
Print Property sheet
Send property sheet by mail
Schedule a visit
RealEstate Brokers
Jenkins Rita
+356 7712 7772
+356 9998 6779
+356 9998 6775
rita@sensaramalta.com
Information request
Name *
Phone *
E-mail *
Request Details *
I authorize the processing of my personal data according Regolamento UE n. 679/2016 -
Privacy Policy
I authorize the processing of data for marketing purposes, promotional activities, commercial offers and market surveys.
Send
Share on
We also recommend
for Sale
Zebbug Gozo - 2 Bedroom Penthouse + Airspace
235,000 €
for Sale
Xewkija Gozo - Unconverted Terraced Houses
282,000 €
for Sale
Balzan - First Floor Finished 2 Bedroom Apartment On Plan
271,000 €
Keep default settings X
Use of cookies
This site uses cookies. Our (own) cookies and those of our Partners (third party cookies) are used to offer you a unique experience with us. For this reason, together with our partners, we collect and process non-sensitive information (such as the identifier of your device or the pages you visit).
At any time you can delete, modify or verify the information you share in
Cookie preference
or in our
Cookie Policy
and
Privacy Policy
.
Necessary
Functional
Profiling
Analytics
Accept all
Decline all
Accept selected
Cookie preference