Toggle navigation
(+356) 2164 9500
(+356) 9998 6779
info@sensaramalta.com
Head Office - Sensara Malta
Triq Santa Marija, Safi
09.00 to 19.00 hrs
Monday to Saturday
Home
Properties
Sales
Rentals
Foreign
About us
Services
Contacts
Send your request
Previous
Next
491,500 €
CLICK HERE for DETAILED PHOTOS
Birkirkara - Unconverted Townhouse + Garden
House of Character for sale • Birkirkara
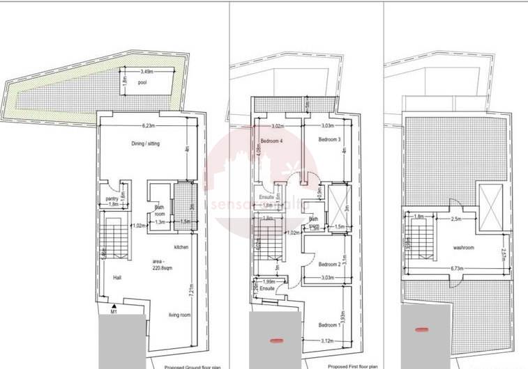
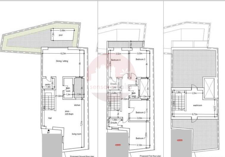
This unconverted townhouse in Birkirkara, It’s in a UCA area, comes with full ownership of the roof and airspace, and sits on about 220 sqm – plenty of space to work with!
It even has two entrances from different roads, which gives you extra flexibility when planning the layout.
Proposed Plan:
Ground Floor:
Welcoming hall
Kitchen and living area
Dining / sitting room with a great view of the pool and garden
Bathroom
Pantry + yard
Garden with space for a swimming pool
First Floor:
Two double bedrooms with terraces overlooking the pool (main bedroom with en-suite)
Another double bedroom with en-suite
Fourth double bedroom
Main bathroom
Roof Level:
Large washroom
Full roof ownership and airspace
This place has loads of potential – perfect if you want to build a stylish family home or are looking for a smart investment project.
Ground Rent: Freehold
Rooms and Features
Code
V023073
Locality
Birkirkara
Property type
House of Character
Price
491,500 €
Locals
1
Bedrooms
4
Bathrooms
2
Sqm
220
Energetic class
Nondescript
Photos • Floorplans • Video
Photos
Options
Print Property sheet
Send property sheet by mail
Schedule a visit
RealEstate Brokers
Kitney Claudia
+356 9940 4319
+356 9998 6779
+356 9998 6775
claudia@sensaramalta.com
Information request
Name *
Phone *
E-mail *
Request Details *
I authorize the processing of my personal data according Regolamento UE n. 679/2016 -
Privacy Policy
I authorize the processing of data for marketing purposes, promotional activities, commercial offers and market surveys.
Send
Share on
We also recommend
for Sale
Mosta - Converted 3 Bedroom House of Character + Pool + Courtyard + Carport
925,000 €
for Sale
Attard - 2/3 DB Bedroom HOC + Cellar + Airspace
575,000 €
for Sale
Zurrieq - 4 Bedroom House of Character
740,000 €
Keep default settings X
Use of cookies
This site uses cookies. Our (own) cookies and those of our Partners (third party cookies) are used to offer you a unique experience with us. For this reason, together with our partners, we collect and process non-sensitive information (such as the identifier of your device or the pages you visit).
At any time you can delete, modify or verify the information you share in
Cookie preference
or in our
Cookie Policy
and
Privacy Policy
.
Necessary
Functional
Profiling
Analytics
Accept all
Decline all
Accept selected
Cookie preference