Toggle navigation
(+356) 2164 9500
(+356) 9998 6779
info@sensaramalta.com
Head Office - Sensara Malta
Triq Santa Marija, Safi
09.00 to 19.00 hrs
Monday to Saturday
Home
Properties
Sales
Rentals
Foreign
About us
Services
Contacts
Send your request
Previous
Next
203,000 €
CLICK HERE for DETAILED PHOTOS
Hamrun - 1 Bedroom 3rd Floor Apartment On Plan
1 bedroom apartment for sale • Hamrun
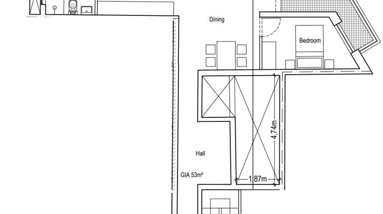
Located on the third floor comes this one bedroom apartment in shell form, currently available on plan.
Consists of an open plan kitchen/dining/living leading to a front balcony, a bathroom, master bedroom with ensuite and another balcony for added outdoor area.
This property is currently on plan and is estimate to be completed by 2026.
Rooms and Features
Code
V022963
Locality
Hamrun
Property type
1 bedroom apartment
Price
203,000 €
Locals
1
Bedrooms
1
Bathrooms
2
Sqm
57
Balconies
2
Floor
3
Energetic class
Nondescript
Photos • Floorplans • Video
Photos
Options
Print Property sheet
Send property sheet by mail
Schedule a visit
RealEstate Brokers
Zahra Gaynor
+356 7933 5643
+356 9998 6775
+356 9998 6779
gaynor@sensaramalta.com
Information request
Name *
Phone *
E-mail *
Request Details *
I authorize the processing of my personal data according Regolamento UE n. 679/2016 -
Privacy Policy
I authorize the processing of data for marketing purposes, promotional activities, commercial offers and market surveys.
Send
Share on
We also recommend
for Sale
Nadur Gozo - 1 Bedroom + Study Ground Floor Maisonette
180,000 €
for Sale
San Gwann - 1 Bedroom 2nd Floor Apartment On Plan
245,000 €
for Sale
B'Bugia - 2 bedroom Penthouse +surrounding terrace
385,500 €
Keep default settings X
Use of cookies
This site uses cookies. Our (own) cookies and those of our Partners (third party cookies) are used to offer you a unique experience with us. For this reason, together with our partners, we collect and process non-sensitive information (such as the identifier of your device or the pages you visit).
At any time you can delete, modify or verify the information you share in
Cookie preference
or in our
Cookie Policy
and
Privacy Policy
.
Necessary
Functional
Profiling
Analytics
Accept all
Decline all
Accept selected
Cookie preference