Toggle navigation
(+356) 2164 9500
(+356) 9998 6779
info@sensaramalta.com
Head Office - Sensara Malta
Triq Santa Marija, Safi
09.00 to 19.00 hrs
Monday to Saturday
Home
Properties
Sales
Rentals
Foreign
About us
Services
Contacts
Send your request
Previous
Next
195,000 €
CLICK HERE for DETAILED PHOTOS
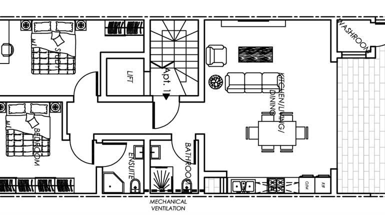
Hamrun - 2 Bedroom First Floor Apartment On Plan
2 bedroom apartment for sale • Hamrun
Located on the first floor level in a new block in Hamrun comes this two-bedroom apartment currently on plan.
Consists of an open plan kitchen/dining/living complemented by a front balcony, hallway, a bathroom, a master bedroom leading to a back balcony and a spare bedroom.
This apartment is being offered in advanced shell form and is estimate to be completed by 2026.
Rooms and Features
Code
V022957
Locality
Hamrun
Property type
2 bedroom apartment
Price
195,000 €
Locals
1
Bedrooms
2
Bathrooms
1
Sqm
62
Balconies
2
Floor
1
Energetic class
Nondescript
Photos • Floorplans • Video
Photos
Options
Print Property sheet
Send property sheet by mail
Schedule a visit
RealEstate Brokers
Zahra Gaynor
+356 7933 5643
+356 9998 6775
+356 9998 6779
gaynor@sensaramalta.com
Information request
Name *
Phone *
E-mail *
Request Details *
I authorize the processing of my personal data according Regolamento UE n. 679/2016 -
Privacy Policy
I authorize the processing of data for marketing purposes, promotional activities, commercial offers and market surveys.
Send
Share on
We also recommend
for Sale
Attard - 2nd Floor 2 Bedroom Apt Fully Finished
338,100 €
for Sale
Gharb Gozo - 3 Bedroom Terraced House + Pool
620,000 €
for Sale
Ta' Xbiex, 1st Floor 2 Bedroom * Finished apartment with Yard
350,000 €
Keep default settings X
Use of cookies
This site uses cookies. Our (own) cookies and those of our Partners (third party cookies) are used to offer you a unique experience with us. For this reason, together with our partners, we collect and process non-sensitive information (such as the identifier of your device or the pages you visit).
At any time you can delete, modify or verify the information you share in
Cookie preference
or in our
Cookie Policy
and
Privacy Policy
.
Necessary
Functional
Profiling
Analytics
Accept all
Decline all
Accept selected
Cookie preference