Toggle navigation
(+356) 2164 9500
(+356) 9998 6779
info@sensaramalta.com
Head Office - Sensara Malta
Triq Santa Marija, Safi
09.00 to 19.00 hrs
Monday to Saturday
Home
Properties
Sales
Rentals
Foreign
About us
Services
Contacts
Send your request
Previous
Next
281,500 €
CLICK HERE for DETAILED PHOTOS
Santa Venera - 3rd Floor 2 Bedroom Finished Apartment Ready Built
2 bedroom apartment for sale • Santa Venera
Located in the heart of Santa Venera, this third-floor apartment offers a comfortable and modern living space ideal for couples, or as an investment opportunity. This apartment is ready built and is estimate to be finished(excluding bathrooms and doors) by end of 2025.
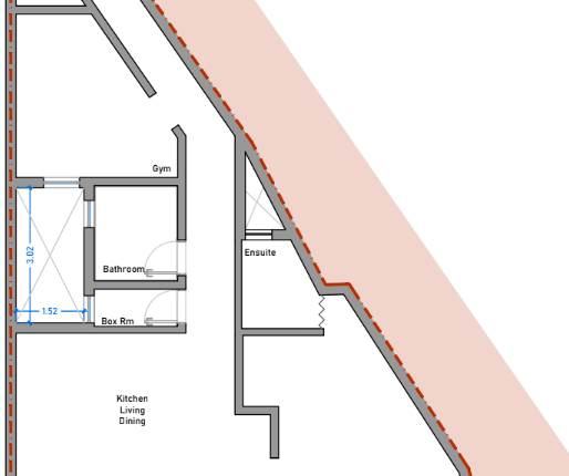
The property features a bright open-plan kitchen, dining, and living area, creating a welcoming and functional layout. It includes two well-sized bedrooms, with the master bedroom enjoying the added convenience of an en-suite bathroom, while a main bathroom serves the rest of the home.
Situated in a central and well-connected area, this apartment combines practicality with contemporary living.
Rooms and Features
Code
V022603
Locality
Santa Venera
Property type
2 bedroom apartment
Price
281,500 €
Locals
1
Bedrooms
2
Bathrooms
2
Sqm
90
Balconies
1
Floor
3
Energetic class
Nondescript
Photos • Floorplans • Video
Photos
Options
Print Property sheet
Send property sheet by mail
Schedule a visit
RealEstate Brokers
Schembri Maria Pawla
+356 7732 8183
+356 9998 6779
+356 9998 6775
pawla@sensaramalta.com
Information request
Name *
Phone *
E-mail *
Request Details *
I authorize the processing of my personal data according Regolamento UE n. 679/2016 -
Privacy Policy
I authorize the processing of data for marketing purposes, promotional activities, commercial offers and market surveys.
Send
Share on
We also recommend
for Sale
Zabbar- Second floor 2 bedroom apartment fully finished
265,000 €
for Sale
Msida - 1 Bedroom First Floor Finished Apartment On Plan
302,000 €
for Sale
Mosta - 2 Bedroom 3rd Floor Finished Apartment
295,000 €
Keep default settings X
Use of cookies
This site uses cookies. Our (own) cookies and those of our Partners (third party cookies) are used to offer you a unique experience with us. For this reason, together with our partners, we collect and process non-sensitive information (such as the identifier of your device or the pages you visit).
At any time you can delete, modify or verify the information you share in
Cookie preference
or in our
Cookie Policy
and
Privacy Policy
.
Necessary
Functional
Profiling
Analytics
Accept all
Decline all
Accept selected
Cookie preference