Toggle navigation
(+356) 2164 9500
(+356) 9998 6779
info@sensaramalta.com
Head Office - Sensara Malta
Triq Santa Marija, Safi
09.00 to 19.00 hrs
Monday to Saturday
Home
Properties
Sales
Rentals
Foreign
About us
Services
Contacts
Send your request
Previous
Next
250,000 €
CLICK HERE for DETAILED PHOTOS
Dingli - 3rd Floor 1 Bedroom Apartment
1 bedroom apartment for sale • Dingli
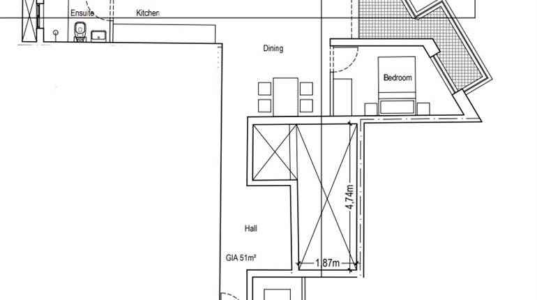
In the village of Dingli comes a one bedroom apartment set on the third floor and being offered finished excluding bathrooms and internal doors.
Upon entering one finds a bathroom, kitchen/living/dining, double bedroom and two balconies.
Freehold
Rooms and Features
Code
V022345
Locality
Dingli
Property type
1 bedroom apartment
Price
250,000 €
Locals
1
Bedrooms
1
Bathrooms
1
Sqm
60
Balconies
2
Energetic class
Not applicable
Photos • Floorplans • Video
Photos
Options
Print Property sheet
Send property sheet by mail
Schedule a visit
RealEstate Brokers
Cortis Marika
+356 9925 6579
+356 9998 6779
+356 9998 6775
cortis@sensaramalta.com
Information request
Name *
Phone *
E-mail *
Request Details *
I authorize the processing of my personal data according Regolamento UE n. 679/2016 -
Privacy Policy
I authorize the processing of data for marketing purposes, promotional activities, commercial offers and market surveys.
Send
Share on
We also recommend
for Sale
Swieqi- 2nd floor , 1 bedroom + Back Balcony + Fully Finished + Opt Garage
292,000 €
for Sale
San Pawl il-Bahar - 1 Bedroom Apartment + Airspace
348,000 €
for Sale
Paola - On Plan 1 Bedroom Apartment
186,000 €
Keep default settings X
Use of cookies
This site uses cookies. Our (own) cookies and those of our Partners (third party cookies) are used to offer you a unique experience with us. For this reason, together with our partners, we collect and process non-sensitive information (such as the identifier of your device or the pages you visit).
At any time you can delete, modify or verify the information you share in
Cookie preference
or in our
Cookie Policy
and
Privacy Policy
.
Necessary
Functional
Profiling
Analytics
Accept all
Decline all
Accept selected
Cookie preference